与城市对话 | 致逸筑

——卞之琳
序
【嘉兴平湖世茂璀璨天悦】的设计起源于城市的空间和状态,立意于空间的变化和体验,着笔于场景的情境和序列,创造城市和住区之间的对话和沟通。

起源
区位分析

△项目区位分析
社区规划
项目规划初期尝试所有可能性,从土地资源、周边竞品、集团诉求、成本货值这四个纬度寻求最佳解答。建筑排布的角度关系与东侧地块设置在同一水平线,使两侧组团花园的景观视线相互渗透。西侧建筑则与嘉善塘形成视野渗透关系,沿河资源最大化利用。最终本案形成西南高,东北低的半围合形态,将周边建筑对本社区日照的影响降到最低;中心绿地最大化,保证社区品质。

△项目规划过程

△鸟瞰效果图
设计利用现状土地西高东低的高差,抬高基地内标高,减少土地挖方,降低成本,从而提升土地利用价值。然后通过严谨的推算,将不同类型产品进行拉高拍低,使货值最大化。

△典型场地剖面
立意
示范区选址
示范区选址的原则是展示社区形象,便于快速开发,规避不利界面。经过多方案的比较,最终将售楼处放置在地块西北角,利用待建道路及原有城市绿化景观将永兴路人流引入基地。

△示范区位置示意
示范区的可用范围呈长85m*宽44m的矩形,具有相对较长的展示面。设计充分利用红线退让,将建筑融于自然,为永兴路营造一个具有良好环境且可交流的空间。售楼处建筑体量以低层的形式呈现,巧妙规避后方高层住宅对城市形成的压迫感,更好的衔接城市界面和小区建筑。

△售楼处体量分析
示范区方案设计
示范区整体设计讲究步移景异,增加客户的记忆点和体验趣味。借用市政规划道路往南设置临时停车区,既不影响景观展示面,又避免二次改造;入口广场运用景观墙和建筑形成围合的关系,增强入口的仪式感;通过体块的交错、叠加、延伸,将建筑功能与形式完美的结合,在保证建筑整体节奏流畅的同时,着眼对内外空间渗透穿插,形成建筑的有机形态。

△示范区方案生成过程
体验动线从前院景观一直延续至小区架空人行入口,形成四重院落:景观前院---售楼处入口庭院---仪式入口景观---小区架空人行入口,通过这四重空间的穿越,营造住户回家的仪式感和空间序列感受,亦利于售楼处后期的改造和使用。

△示范区体验动线分析
落笔
起承转合的趣味空间
利用大水面来衬托建筑,柔化建筑边界,使整体入口环境充满艺术魅力。淡雅的石材与剔透的玻璃,给建筑打上自然的影子,使其好似漂浮于水面之上。建筑的厚重与水植的温润在冲突中达成统一,安然处之。入口对面雕塑楼梯的设置,简约轻盈,既是交通功能,也是立面造型,形成具备不同功能的半私密性空间,连接内外。




售楼大厅入口藏而不露,架空层联系未来的居住区步行景观轴线。室内大台阶营造尊贵的气氛,沙盘展示前的铺垫;展示大厅和洽谈区的空间豁然开朗,透过窗户俯瞰城市绿化带,带给客户不一样的感官体验。




对话城市的悬浮盒子
设计通过细节的处理和用材的选择,将建筑体块之间的关系和比例诠释更加鲜明。面对城市快速路,玻璃盒子增加了项目的标识性;从二层高的玻璃盒子往外,充分利用周边的景观资源,视线开阔,建筑融入自然,与城市互为对景。


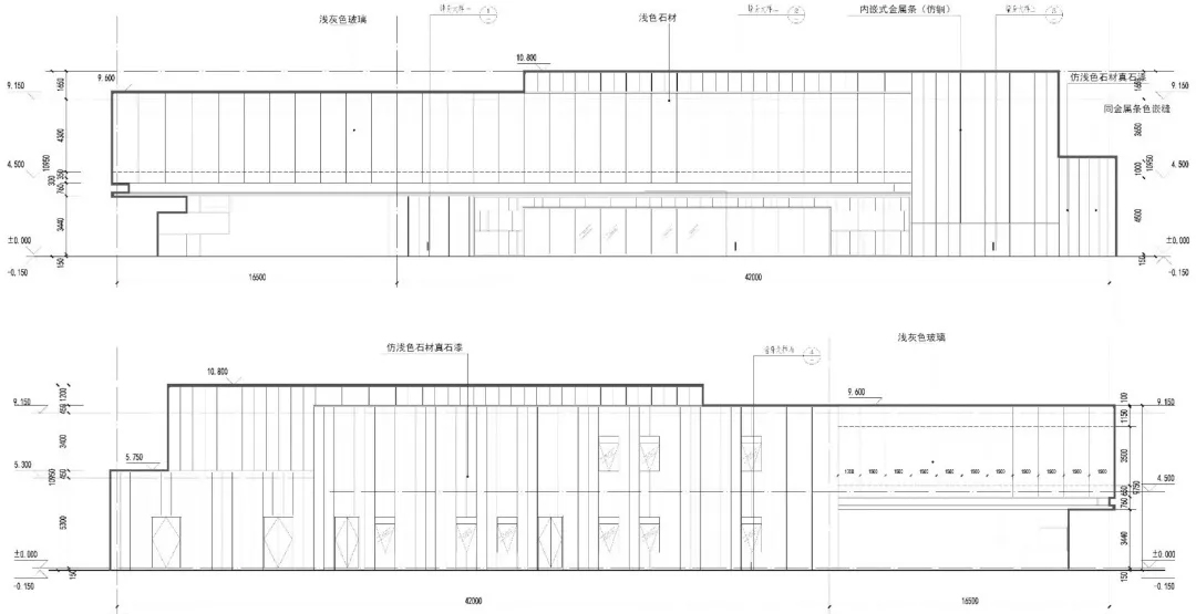
售楼处建筑利用石材的肌理与玻璃的质感,形成强烈的虚实对比关系,再融入体块的穿插关系,增强光影的变化与感受,形成尺度城市空间简洁鲜明的形象。

△售楼处建筑剖立面
是夜,玻璃建筑散发出柔美的光芒,远看似一个漂浮的晶莹盒子,柔美的光芒让人舒适,沉静其中,可以慢慢欣赏。她装饰了城市的风景,引人入梦。




上海市长宁区武夷路155号A栋5楼
商业联系: liyumeng@geedesign.cn
人事联系: hr@geedesign.cn