魔方的解构与重塑

Copyright:GEEDESIGN
在极限用地条件下,如何满足售楼处昭示性以达到吸引客流是本案设计的主要目标。
致逸设计师集思妙想,以一种魔方式、像素化的设计手法,将简单的体块解构重塑,打造出丰富的城市公共界面。
银城云谷天境项目位于杭州西湖区云谷板块,交通便利、设施完善、具有良好的生活氛围。

△项目区位分析
首开区处于街角,在用地面积较小,又要满足建筑面积的要求下,建筑体量无法做出过多的变化。如何满足售楼处昭示性以达到吸引客流成为设计的主要目标。

△首开区位置示意
设计理念
致逸设计师集思妙想——“魔方”设计理念呼之欲出。
魔方在发明之初便是作为建筑学教学道具,其本身与建筑具有极大的相性。设计以方块魔方作为基础结构,模拟建筑立面的解构重塑,以一种魔方式、像素化的设计手法,将物体解析成几何或立体形式的单元,并将这些元素重新组合成具有韵律感的视觉结构。

△建筑立面元素解构

△建筑形体整合
实景呈现
通过对规整统一的“城市橱窗”进行错落拼接,形成了丰富的公共城市界面。采用形体切割,使建筑墙面与顶部折线式的造型界面错落有致,丰富视觉的同时强调了建筑的雕塑感。



立面以铝板和玻璃这两种材料为主。细节上,铝板采用两种状态,灰色铝板和铜色铝板,灰色用于立面铝板框和部分铝板面,铜色用于雨棚和凹凸铝板面;玻璃亦使用了两种形态,高反玻璃和印花玻璃,力图使整个建筑现代而不花哨,素雅而不刻板。




建筑体块虚实结合、通透明快,营造出丰富温暖的商业环境。上下错落的序列排布,打破建筑大型体量的压迫感,同时实现室内功能对光线和视野的需求。



玻璃轻盈通透,铝板稳重温暖,这两种不同特性的材料,通过不同维度的穿插排列组合,形成理性的空间序列和丰富的空间形式。

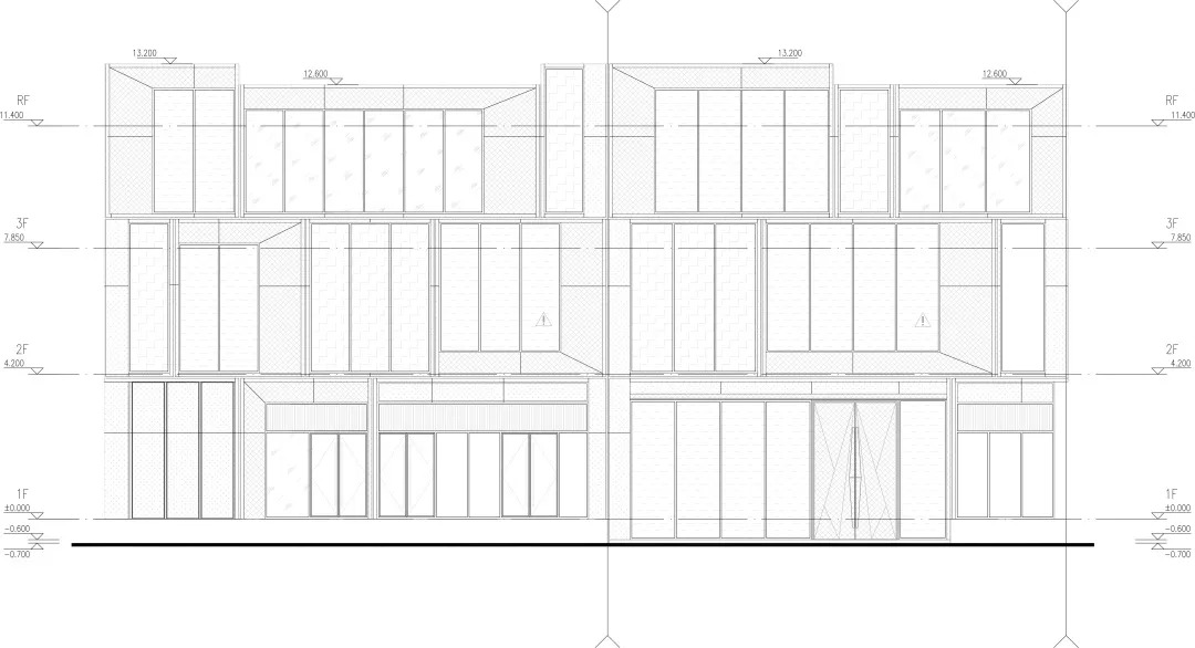
△南立面图

△东立面展开图

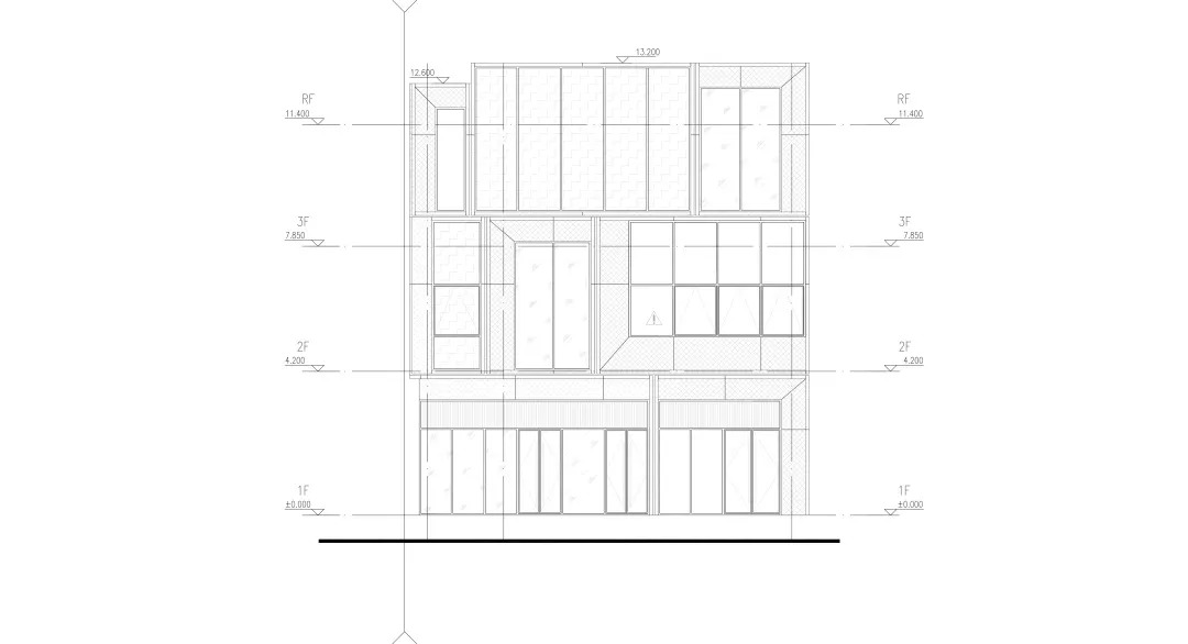
△北立面图

△西立面图

本案通过“魔方的解构与重塑”这一巧妙的设计手法,不仅成功解决了设计之初的难题,同时也将建筑与环境相融合,打造出一个具有魅力的城市艺术中心、丰富有趣的公共城市界面。
上海市长宁区武夷路155号A栋5楼
商业联系: liyumeng@geedesign.cn
人事联系: hr@geedesign.cn