滨江CBD国际化社区的新高度

温州万科时代中心
“一座城市能带给你快乐,不是因为这里有多少奇观,而是因为你带着疑问而来,并在这里找到了答案。”
— Italo Calvino
与自然共生
20世纪的城市学者简·雅各布斯在分析欧美城市的发展思维时曾提出,“毫无疑问,充满活力、多样化和用途集中的城市区域将孕育自我再生的种子,它们拥有足够的力量延续再生能力并最终解决城市自身的问题与需求”。而今日中国正值广纳国际经验,社会上下求诸能量为城市更新储备策略之际,在激活城市空间,最大化综合效益的命题下,挑战与机遇并存。

△面朝瓯江的绝佳区位与城市环境
温州,这座集东南山水之大成的都市,“倚江、负山、通水”的城市脉络贯通古今。放眼当下,作为瓯江畔绝佳区位的超高层综合体地标,温州万科时代中心占据着城市主轴和江岸景观线的共同交汇点。

△项目所处城市的地理区位

△项目布局与城市肌理关系
值此城市更新的伊始阶段,万科认为开放和多元的场所精神才是具有国际标准的社区内核所在。如何巧妙的根据在地性营造出人与城市、自然共生的生活场景,成为该项目首要面临的设计难点。
通过数轮竞争激烈的国际招标,凭借对城市精神的精确解读,致逸团队脱颖而出,赢得该项目的最终设计权。整体规划设计从场所出发,重塑江流边界、天际景观、城市院落和高层建筑的关系,营造“面山临江而居,此中与世暂相忘”的自然境地。这座超高层综合体的总建筑面积为96,068㎡,包含办公、商业、居住社区、复合社区等功能。

△整体规划设计草图

△项目整体鸟瞰效果图
重塑滨江天际线
如同哈德逊河之于纽约,泰晤士河之于伦敦,塞纳河之于巴黎,在涉及城市尺度的环境规模、时间与复杂性的情况时,滨水天际线对于营造国际都市景观的可读性,通常具有特殊的作用。作为温州新兴商务区,项目基地虽为城市沿江界面的重要构成,但现状中平均宽高比接近1,缺乏可圈可点的景观高潮节点。

△在高低结合的体量框架下,
比较不同肌理与城市界面的关系
为此设计团队首先着眼于完整有序的城市风景带,以塔楼高低前后错落形成局部的建筑节点、统领收头,打造具有标志性的超高层建筑形象与城市天际线。

△方案草图与模型

△沿滨江城市天际线


△瓯江对岸,遥望城市天际线
多元复合的“城市橱窗”
如何在仅约25,000平方米的局促用地中容纳多元业态的诉求,成为设计团队遇到的一大难点。
顺应滨江界面的趋势,我们根据土地价值的分析结果,平衡景观资源的优劣性与城市干道的关系,着手研究分析不同功能之间的多种业态组合,在有限的局促用地上寻求最为合理化的高效策略。

△多元复合业态布局或者方案生成过程分析图
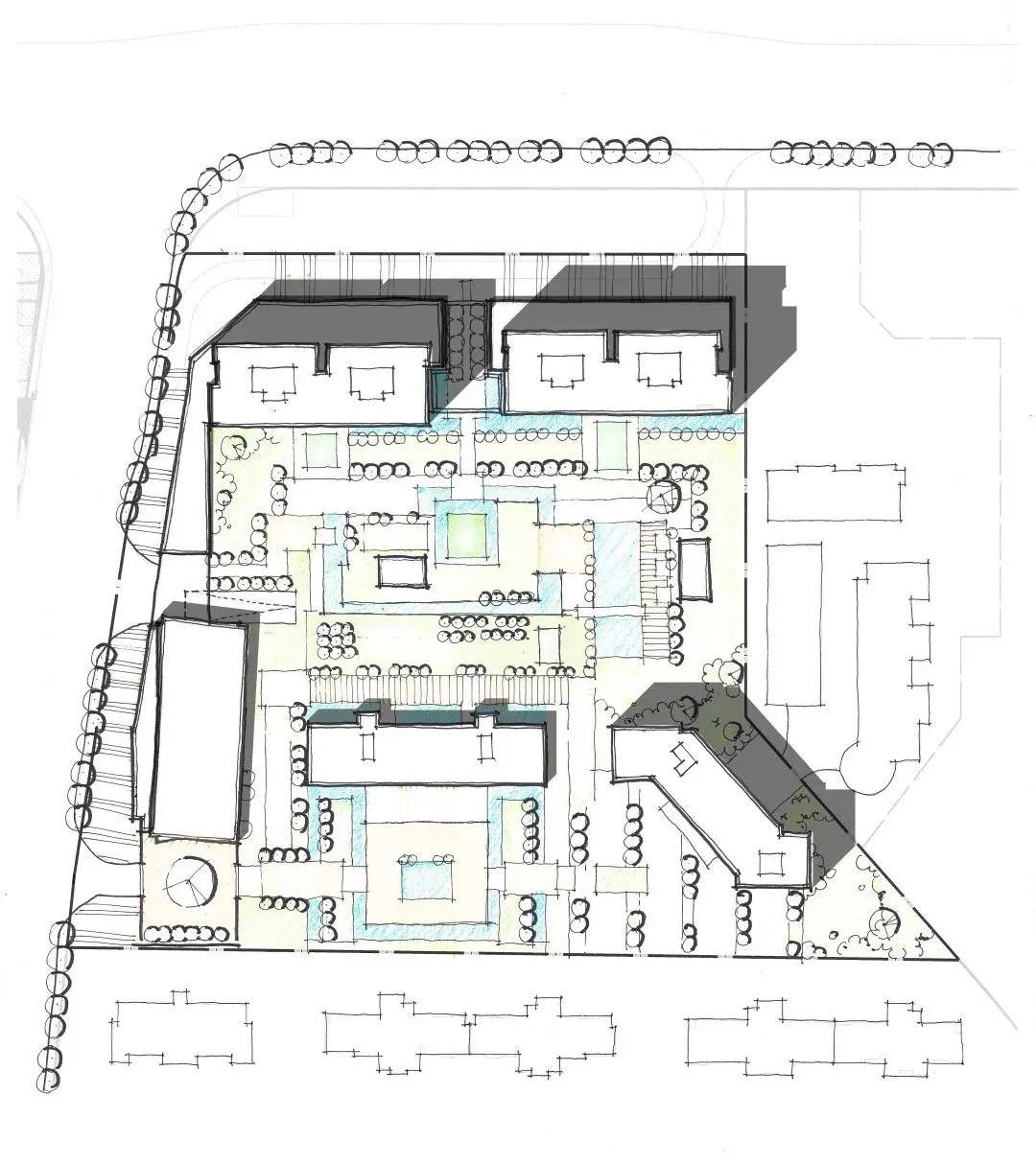
依据景观资源的价值高低将基地划为三块区域,形成东北高,西南低的规划形态,以多元业态包围居住区。临一线江景,住宅区被置于地块北侧;办公在东侧,呈N型的建筑体量顺地形而为,拓展面向公园和江景的视野范围;商业则沿主要街道布置,联动城市公共空间,激活场所周边的人流,发挥其最大的价值。

△总平面图

△项目整体俯瞰实景
从城市角度出发,我们发现过多的塔楼体量对南侧安置房及西侧道路均形成压迫效应。因此设计将地块西侧高层体量进行拆解,分成两个较低矮体量,避免对安置房形成压迫,改善对现存界面的城市关系。

△设计方案模型,沿城市主干道
空间的体量退让有效避免压迫感
△从项目南侧半空望向社区院落
△从城市街道望向社区商业配套

△社区第一进院落空间
空间开合
在高密度城市集群土地上,设计团队重视建筑的体验感,重构城市空间的开合序列,满足人对多元空间的需求:向外,能最大化自然景观与公共资源,缝合城市街道、广场、水岸以及周边公园;向内,则能形成递进的围合之势,营造私密宁静的归家感。

△轴测剖透视
归家动线路径将景观渗透其中:一进院落为社区门户,为公共空间;二进院落为城市客厅,转为半公共空间;三进住区院落,进入全私密花园。从开到合,由动至静,形成渐次递进的空间体验,渗入富有活力的城市街景与江岸风景。

△从西侧城市街道进入社区庭院


△城市客厅院落空间

△配套社区院落空间

△由三进院落的私密花园行至住宅区
山水城市,江色琉璃


△城市界面与自然环境的关系
在阿诺德·伯林特的环境美学中,尽管人们并不常常把自然与城市联系起来,但它们无疑是出现在城市环境中的,事实证明,嵌入节奏缓慢的乡村式自然对解决城市问题并非大有裨益。


△容山纳水,超高层住区实景
大到一座城市,小到一扇门,“自然并非城市的对立面,城市的调节功能体现在对人与自然关系的平衡”,温州万科时代中心项目对此做出一次积极的探索。

温州万科时代中心
项目业主:温州万科
项目地点:温州市鹿城区B35地块
项目类型:超高层综合体,办公、商业、居住社区、复合社区
用地面积:24,017㎡
建筑面积:96,068㎡
建筑高度:150m(44F)
建筑设计:致逸设计
设计主创:叶笛、潘翼、解虎
设计团队:吴典洋、叶海挺、侯英浩、林振方、徐若晗
景观设计:新加坡Cicada、朗道设计
室内设计:牧笛设计、乐尚设计、紫香阁设计
施工图设计:中森设计
幕墙设计:中南幕墙
灯光设计:RDI瑞国际照明设计
标识设计:天树
建筑摄影:何震环、曾江河、余周春雨
上海市长宁区武夷路155号A栋5楼
商业联系: liyumeng@geedesign.cn
人事联系: hr@geedesign.cn