出则繁华,入则宁静

一场雍雅与时代共话
诉说匠心与时间的故事
出则繁华,入则宁静
【嘉兴金地风华剑桥】
中国传统建筑所对应的人群可分三类——仕、官、商。
此三类中的“仕”以中国传统文化为基调,学而优则仕,追求纯粹的人文艺术修养,与“风华”气质不谋而合。与仕的气质相符的建筑安静、简洁、淡雅,由高级的材料来营造,工艺手法工整考究,最终所展现的形象优雅精致且经得起时间的历练。


区位背景
项目位于被誉为“嘉兴硅谷”的科技城一期核心区域,周边触手可及的繁华商圈,购物、休闲、餐饮、娱乐配套一应俱全。西侧为亚欧路、南侧为晨光路,东侧为景观水系,进入城市主干线非常方便,同时坐享中央公园、植物园、凌公塘公园等景观资源。可谓出则繁华,入则宁静。

△项目区位分析
项目规划
项目整体布局呼应城市建筑空间格局,重点提取多进制的礼仪空间要素、同时注重社区人文艺术情怀的营造,在规划上采用十字轴线布局,强化空间序列性,带来气质和品质的双重提升;外借景、对内聚景的手法,对外部景观资源进行利用,同时内部通过建筑围合大尺度的景观庭院。

△总平面图

△项目整体鸟瞰
建筑立面造型为现代东方风格,中轴对称,仪式感强,给人以尊贵大气的感觉;古典三段式构图、层次分明,立面主从分区清晰;横向线条简洁明朗、一目了然,通过点、线、造型的变化构成不同的立面肌理;偏古典东方装饰的立面风格门头,体现建筑的尊贵品质。

△1T2楼南立面透视
简练大气·淡雅和谐
示范区选用最新理念的风华产品,结合东方韵、国际化的概念,设计采用现代手法,通过体块的交错、穿插、延伸,将建筑功能与形式做到恰到好处的结合,满足功能需求的同时增加艺术表现力。整体构图上大气简练,配上淡雅和谐的色彩,从而打造出一个富有文化气质的城市会客厅。

△示范区生成过程



示范区设计上运用虚实结合的手法,按照现代演绎的方式加以表达,立面上选用现代的材料,让轻盈的玻璃和厚重的石材两种材料形成强烈的对比和视觉冲击力,为了增加建筑整体现代感和艺术感。



细节控制·精致示范
在石材表面处理上,运用同一种石材三种不同肌理的处理方式,增强石材竖向分割组合而赋予的律动感,并削弱石材厚重体量带来的枯燥感和压迫感。石材间细部附加香槟金金属沟缝及压边配上灯槽上的灯光,凸显整体的现代感。

△石材三种肌理

△南侧墙体节点分析

△西侧墙体节点控制

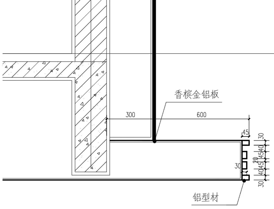
△铝板凹槽节点
外立面采用白色花岗岩石材、玻璃幕墙及金属铝板够多种建筑材料,石材多种表面处理形式做拼接,以荔枝面石材为主,光面石材及机刨面石材为辅。外立面浅色系干挂石材与玻璃面进行对比,强调了建筑体块虚实划分及立面节奏,窗洞口及石材下沿等虚实间使用精致香槟金铝板进行过度,从另一个角度体现建筑的精致和价值感。


在城市界面街角内天井,地面采用精美雕塑,墙面上点缀精致的校训金属字,并结合场景和空间以及灯光的衬托。营造出在繁华都市中不经意间出现的一个具有漂浮感的雕塑体,让人产生好奇感和探索体验感,身处其中可以给人以脱离喧哗的一个宁静而具有气质的城市会客厅。


最好的建筑是我身处其中
却不知道自然在哪里开始
艺术在哪里终结。
——林语堂
▽施工花絮


△现场收录


△巡检合影
上海市长宁区武夷路155号A栋5楼
商业联系: liyumeng@geedesign.cn
人事联系: hr@geedesign.cn