时间与效率的平衡

南京金地都会四季
如何在极短的时间内呈现极致的效果,非永久性建筑与永久性建筑该如何平衡?
基于南京金地都会四季示范区的落地,我们对以上两个问题有了新的认识。
项目背景
项目位于南京,业主向我们提出希望能够以最快的速度设计并建造,最终呈现一个高品质临时售楼中心的诉求。看似苛刻并矛盾的诉求,对设计师来说,既是一个艰难的挑战,又是一次有意义的项目实验契机。最终,在20多天的设计时间和不到2个月的建造时间里,南京金地都会四季示范区就成为了一个惊喜。


△南京金地都会四季
场地环境
作为整个示范区最先“亮相”的单体建筑,同时也作为一栋非永久建筑,它与用地东侧的永久售楼处之间存在一种“生长关系”的同时,在后期,和永久售楼处之间也保留了一种“呼应关系”。

△场地关系示意图
整个示范区的场地和市政界面之间,通过一片柱廊组成的半虚半掩的院墙将示范区的内部场地和外部市政道路场地隔离开来,廊柱也变成设计的延伸,形成建筑或者景观的一部分,让外部的人能够看见内部的活动,但又无法直接通过,让客户在此产生了视觉上的好奇心!


△廊柱构成半虚掩的院墙
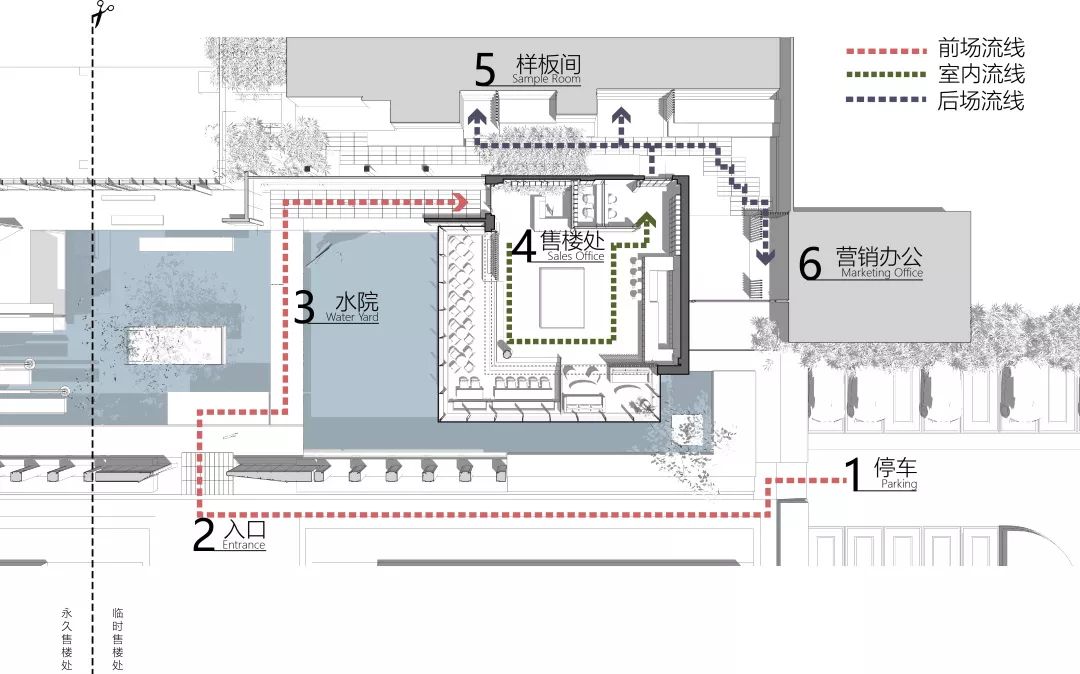
空间流线
设计师根据销售功能流线安排售楼处、样板间和营销办公室:从室外入室内,移步换景,从停车出来沿半虚掩的廊柱院墙前行进入示范区内部,静谧典雅的水院便呈现在眼前,售楼中心方法漂浮在水面的透明盒子,美丽而精致。

△南京金地都会四季
沿步道进入高挑的售楼大厅,透过明亮的玻璃水院和廊柱墙院又以不同的形态呈现在眼前,令人心生平静。
在对景关系视觉引导下,自然采光消除了室内空间的压抑感,沙盘展示模型在如此纯净的空间里变成了展品,让人细细的解读与品味。
内部功能流线按照接待、沙盘展示、样板房展示、洽谈签约得基本功能组织,简洁明了,功能完备。

△流线分析图
建筑方案概念
“双盒”——玻璃盒子+石头盒子

△南京金地都会四季
作为最早“亮相”的建筑单体,项目赋予了其最初的展示及销售功能,而同时,业主希望它是个面积不大,但足以抓人眼球的东西。此时场地用地除了这座临时售楼处之外可以说空无一物。
我们认为这座建筑物更应该像是一局雕塑,一个类似装置艺术的建筑,它应该具有建筑的实验性、空间的趣味性和环境的包容性。


△南京金地都会四季
最后我们把最为简单的盒子作为元素,其中一个玻璃盒子,另一个石头盒子,两个盒子互相包裹,互相渗透,互相咬合。

△建筑形体生成示意图
玻璃盒子充分起到连接室内和室外的过渡作用,本身的材质特性在白天可以把天、把环境反射到自己的身体上,从而让建筑融入到环境中。

△南京金地都会四季-日景
到了晚上灯光把室内的空间和家具照亮,又像一颗饱含内容的水晶抓住每个人的视线,形成一道虚拟的屏障。而石头的盒子在白天作为背景衬托着玻璃盒子,到了晚上灯光打在玻璃盒子背部包裹着的石头墙面上,石盒又成了主角。

△南京金地都会四季-夜景
两种材质的盒子,通过白天黑夜的交替,角色的转换,效果的切换,充满了戏剧性。
室内洽谈区沿玻璃盒子布置,采用下沉的设计,落座其中向外望去,仿佛置身水下,水景院景一览无余,别有一番风味。

△南京金地都会四季
结语
“我若梧桐,凤凰自来栖;我是大海,百川才来汇”,简单、自信、大方是我们对它的定义。
不需要过度渲染的外表,玻璃与石材的碰撞,水的介入,简单的售楼中心,不简单的设计。



上海市长宁区武夷路155号A栋5楼
商业联系: liyumeng@geedesign.cn
人事联系: hr@geedesign.cn