探索山居之地的建造范式
苏州大象山舍
苏州市.高新区/ 2021.07
受惠于苏州大阳山畔优越的山地自然风光和南低北高的规划条件,大象山舍雕刻创造的空间处处展现着与自然和谐共处的勃勃生机。
集水群山的设计原点
场地思考
△项目周边环境
△项目基地原始状态
大象山舍,毗邻大阳山国家森林公园,尽享优质山湖自然资源。区别于传统自然之下的国风设计语言,大象山舍在这片弥足珍贵的山湖之地,试图以一种更为现代的设计语言打造一片理想山居之地,赋予空间以生活之象。
△项目总体规划平面图
项目基地呈南低北高之势,顺应山地走势与居住的光照需求,由南至北错落分布叠墅、多层及高层等多类精品户型。其中,以叠墅为主的南区一期工程,现已建造完成并交付使用。
△南区示范区+叠墅实景
山水语义下高层住宅的连续形态
实体与肌理
建筑实体肌理化的城市策略
大象山舍北区的设计,在延续南区整体南低北高规划的同时,又做出了有别于南区的排布设计。为最大程度保证每栋建筑都可借山景,满足日照需求,在北区,我们采用了“梅花桩”式排布格局,非对称错落的建筑单体,在通透的动线与连续的空间中接纳自然。
△项目鸟瞰实景图
同时,大型核心绿化的设计,还将绿色的触角延伸至小区内各个角落,由点及面贯穿绿意,达到居住与环境生态有机的结合。
相较于传统高层住宅,我们为项目因地制宜的设想了一种全新的高层住宅形态。设计打破常规,通过重新排列来调整项目的内部空间,将核心筒移至建筑主体之外,从而创造出更加开阔且连续的空间。大面积开口空间在为住户争取更多景观资源的同时,核心筒外置的特殊设计所形成的错维立面,也赋予空间更多灵动的个性。
大面积玻璃幕墙和灰色系铝板材料的使用,延续了南区公建化立面的品质感,追求不规则中的建筑美感与视觉冲击,同时也消解了大尺度的楼面宽带来的压迫感,更加注重人在空间尺度的舒适感受。
悬浮体块的力学挑战
为保证项目整体的连贯性,不同于常规示范区相对独立地存在,本案示范区承担起出入口的功能,分为上下两层。
△北区示范区效果图与实景图对比
虚实体块相叠加,项目以简洁的线条勾勒出大尺度空间,开阔的结构轻松托起悬浮的体块。为实现这种轻盈的漂浮感,我们通过方案的反复推敲并配合计算,最终决定减少架空层支柱,并以大跨梁和钢结构加固等形式进行辅助;
以极细致的铝型材线条勾勒出的二层形体,使用序列性格栅打破大尺度玻璃面单调的设计语言,同时采用新西兰灰石材,强调与玻璃面的对比,着重表达立面的戏剧化冲突,更显示范区的灵动与多变性。
构想与真实的博弈
整体与细节
大象山舍立面设计采用了“类幕墙”的窗体系,以幕墙体系的精致序列为其美学及视觉追求,并贯穿沿用于整个项目。
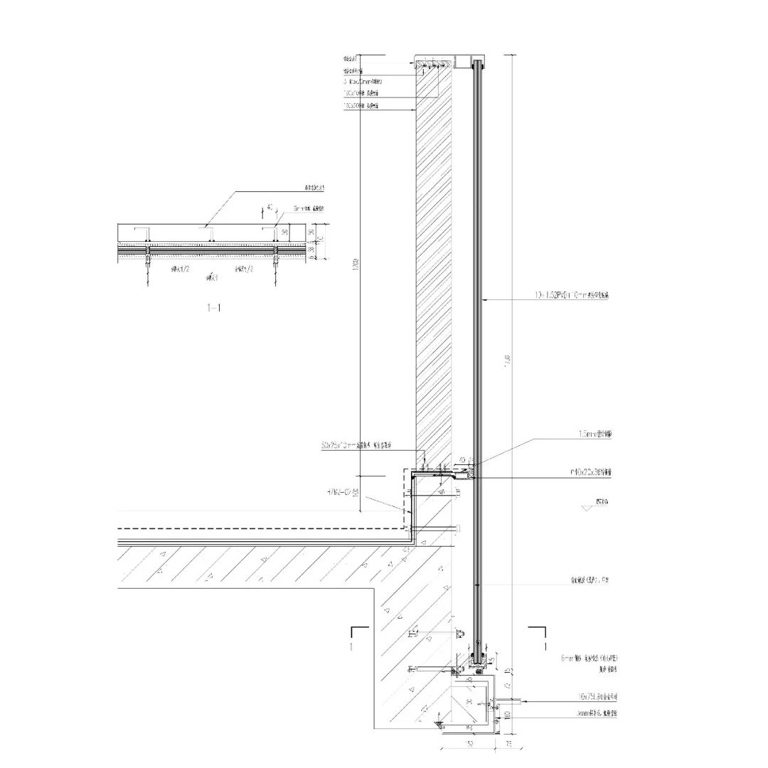
△高层区玻璃栏杆节点大样
△高层区立面实景图
立面美感在于材料搭配和构造处理,为了还原最真实的材料、构造手法以及空间尺度,我们反复数次进行了推敲和对比,最大程度地模拟了建成后的效果。
△叠墅区样板墙及剖面详图
△叠墅区立面实景
正是对立面整体效果及细部构造的绝对关注,最终保证了项目的高完成度,最大程度还原了设计初衷。
大象山舍充分尊重了在地文化的建筑语言与特色,并通过现代设计手法构建出全新的住宅形式,希望可以为居住者提供真实可触的生活体验,同时创造出全新的立面语言,丰富城市界面。这种对意识形态和实际感受的注重,成就了大象山舍独特的人文气质,让空间这种相对物质客观存在的形式,获得一种全新的示意。
免责声明:
仅做设计宣传,最终以实际交付为准。
主创设计师
朱煜
林振方
苏州大象山舍
项目业主:苏州高新万阳置地有限公司
项目地点:苏州市·高新区
用地面积:138,470㎡
建筑面积:284,839㎡
建筑设计与规划: 致逸设计 +SCDA
致逸设计团队:朱煜、林振方、吕俊、梁胜、邱瑞、唐富生、华静、宋智杰
施工图设计: 启迪设计集团股份有限公司
景观设计:诗加达景观设计私人有限公司(Cicada Private Limited)
幕墙设计:浙江中南建设集团有限公司
建筑摄影:纯点建筑摄影、存在建筑

上海市长宁区武夷路155号A栋5楼
商业联系: liyumeng@geedesign.cn
人事联系: hr@geedesign.cn





























