您的位置:新闻资讯-致逸头条

城市更新背景下,TOD多元社区的介入策略

2021-10-20

图片


此次建筑档案走进致逸设计,与总建筑师李逸舒展开关于TOD社区生长性的探讨,生长关乎时间经验与规则限定,城市TOD社区的生长性关乎人、建筑、城市之间的基本关系逻辑思考,需要我们从更加人性化的城市视野,重新看待人与城市的关系。


“住区,是以前房子和建筑的关系,TOD社区,则更像一个综合体,通过站城一体化,也就是通过一个地铁或高铁站带动一个城市综合体,对我们来说可能就是一个点带动整个人流状态,是一个场所聚场。”




-


TOD社区探讨的是
一种革新策略


TOD社区,对中国传统的土地划分是一种“颠覆”和“革命”。因为中国传统的土地切分更倾向于一种平面规划、单一功能的视角。传统城市是一种偏重于生产型的土地开发模式,一切是以城市功能为出发点,所以也就造就了很多城市是潮汐式的,CBD白天热闹非凡,到了晚上人潮退去,就是一片死城的感觉,居住区只是居住本身,也缺少一些活力四射的东西。而TOD社区是“立体多维度的土地开发”,它最大的特点是混合。单纯来看,它是一种交通方式的变化,但从城市维度来看,可能还是对城市土地性质以及土地开发的层面一种革新和应用。


图片
图片
TOD社区营造的分析过程


低效的土地利用会导致城市空间的极大浪费。地铁在一定程度上强化了一个地区的土地属性,一旦地铁到达就会带来高强度的开发,如果其他的农业用地转不过来就会变成一种消极的状态,这种消极的状态就会影响到整个区域活力的完整性和连续性。所以,高效的城市利用,首先是对城市密度的掌控问题;其次,才是资源的合理分配,以及是我们在项目启动时在对整个片区土地综合价值的考量,而不只着眼于交通枢纽本身的职能。

图片

我们现在城市里的社区少了一些可交往的理由,也没有多元化的空间交往属性的叠合。因为我们的社区看起来永远是一个高密度、高容积率的状态,那么在高容积率的状态下,怎样实现社区的空间品质,怎样去实现一个公共资源的利益最大化地整合成为了难题。而多元的业态聚集在一块土地里面,会让生活变得更好,让城市变得更丰富,更有活力。

TOD创造了站城一体化,为城市生活创造了更加丰富多元的可能。但是目前状态下的TOD社区仍然面临很多问题,街区已经不仅仅是作为交通功能,更影响人们使用感受的是从站点到城市再到社区的连接,其中最后500米的归家路线的体验设计值得我们关注。


-


开放商业街区

与口袋公园的混合社区



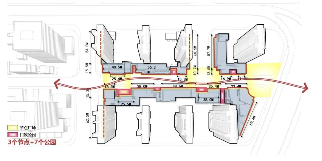
我们做的第一个TOD社区项目位于南京南站,它有一条大轴线,北广场对着老城区,南广场对着新区,两侧都是办公商业的楼群,整个地块的状态略显荒芜,很难让人驻足停留。我们的解题思路是:如何让人们在步行环境系统里,还能找到适宜的闲暇角落。

图片

图片

空间布局与总平面的关系


我们的规划延续了城市绿谷的整体概念,中间是一条步行加车行的动线,这条动线要与高铁、地铁的人流动线形成接驳关系,把人流引进这片商业街区。所以,空间的主干价值是要呈现一个开放式社区的职能,以商业做底、粘合所有商业做一个大底盘,然后把住宅进行融合。我们结合社区里的小广场和线性空间,放置了多个口袋公园,这样商业界面呈现较为复杂灵动的状态,形成一个比较丰富社区空间。

图片

图片

图片

施工阶段的现场实景


从城市尺度层面分析,我们有三个节点:其一是入口,我们把商业界面进一步缩短,让它形成更加丰富的空间;其二是五个口袋公园,公园穿插在社区里面,跟小区的入口形成一个联动与呼应;其三是商业面向城市的剖面分析,把标志性与日常性的商业建筑进行组合,以此形成步道、车道、商业、口袋公园乃至到整个社区的自然过渡,而口袋公园的错动关系,让城市的界面始终具有变化的弹性,形成一种适宜的社区步行体验感。

图片

图片

图片

商业街区尺度分析与效果图


传统商业的逻辑里是要做两层,但这里并没有办法做出两层沿街商业的量,所以每块组团都有个商业内院,而住宅又是相对独立的,于是产生了延展商业的折线空间。因此,它其实是多个小块空间构成,但它们之间并不是一个全部贯通的状态,彼此在公共和私密之间有一些疏离感,而口袋公园具备了消解与联动的职能,所有楼栋底层都是一个开放的状态。

整个过程是一个平面与剖面的解题过程,在开放与共享的大主题下,保持一种适度的公共与私密。


-


极限约束条件下
多元业态的破局思路



混合,即是多个主体共有一套系统,亦或是一套多主体的空间系统形成一个集群放置在城市中间。设计介入城市,便是介入城市的混杂状态,设计就是要从中取得更为混合的手法,把空间还之于民,要在人、空间、建筑、城市四者之间形成一种全新的生态平衡。在改革开放的40年里,我们一直在更新城市观与生活观,设计也要随着时代的改变而改变。建筑师始终具备一种可以改变的力量,可以更加主动地去引导和改变。

我们在做TOD社区设计的时候,会更加在意它的混杂状态以及混杂状态里的疏解,以及疏解之中的分享与共享,这在于与公共和私密之间的条件和界限,在混杂的状态的基底下,要给出新空间的生发方式,把不同的空间分解给予不同的人。职业建筑师就是要对多种资源形态形成一种整合与把控,更微观的介入到城市中,从而满足驱动城市的终极目的,驱动城市与人之间相对良性的生长关系。

图片

图片
TOD社区的多种空间体系分析及案例研究

最近做了很多个复合型业态的项目,我们发觉这些极限性的项目有着复杂多样化的矛盾,单靠技术层面的设计无法破题。

这里值得一提的是在上海做过的复合业态项目,这是一个涉及到商业与住宅业态的布局形式的极限解题思路问题:在前期的输入条件不变的情况下,我们的总体规划设计阶段经历了一系列的精确逻辑应用,根据日照条件明确出住宅的偏转角度,受限于容积率和建筑密度指标,住宅的平均层数拥有多种规划与产品的可能性;在地块限高的情况下我们研究N种户型产品的得房率,结合营销的诉求和过往的经验分析,设计需要在不影响日照的一个面宽的前提下,将可售住宅、自持住宅与保障房的效率集约化,混合布置但独立分区,未来也拥有独立使用的可能。

图片

图片

前期总体规划的推演分析


图片
图片
示范区的昭示性与人流动线相呼应

除去住宅的多轮研究之后,我们仍需面临解决商业总量、密度与界面划分的新一轮问题。四个地块之间的商业价值分析决定了布局形态,是否拔高商业高度或者增加商业延展面。

根据商管、营销、设计的多方针对商业面积补足措施,我们在独栋销售的约束条件下,开始了商铺切分形式的具体规划。在多方多业态混合开发的状态之下,我们厘清了多种住宅类型、多种商业划分形态的规划逻辑,最终完成了严丝合缝、效率集约的规划设计。

图片
多种业态的综合推演分析

图片
图片
沿街商业界面效果与实景图对比


-


关注民生意愿
释放更多的公共生活



社区的内核是市民,但现在我们大多数设计并没有从关照的视角来看这个问题,因为城市首先不是设计师的,城市更多的依旧从属于长官或资本的意志,但我们认为资本从城市角度还是向善的,所以,它和市民之间并不是一个对立状态。

一个社区我们可能要住上六七十年,这种形态在城市中也最普遍,设计师更需要从城市的公共利益、公共价值属性出发。混合与混杂之中的那部分公共属性的弹性与释放尤为重要。这里面民生的东西要更多,而民生意愿也需要在空间之中缓缓地释放出来一些,这样才有可能取得一种人与城市之间的平衡,这个城市才会是市民的。

图片


我们做的一个项目地处上海内环的西藏南路,这块地属于原来江南造船厂,虽然它在黄浦江边上,但在中国城市的开发过程中,周边实际上是属于城市边缘用地。

大地块整体呈现的是老上海的“街坊”格局,街坊里面又被切成了无数个小地块,我们能看到在不同时期开发的各种各样的房子,可以说是一个非常“无序而杂乱”的状态。

图片
上海西藏南路项目鸟瞰效果图

这里正对着地铁出口,出口正对着地块的一个围墙。在这里我们就是要重新认知已经存在的城市围墙和周边的状态,然后才是如何向外延伸的问题。

当时解题的第一步就是在密度很高的地块内把住宅的量做出来:设计很快确定的就是一种“围合形态”,围合的中心会有一个院落空间和公共花园;第二要做到“板点结合”,顺延城市道路展开一个立体的城市院子。

图片
图片
住宅立面的推演过程及最终方案效果图

中国园林那种高低错落的感觉,就是我们说到的“围合”,就是用建筑塑就一种空间中的起承转合。园林形态里最有意思的就是高低错落、俯仰生姿。横竖俯仰之间勾勒出整个城市社区的整体空间状态。

该遮蔽的遮蔽,该开放就开放,在私密与公共之间不仅仅需要焦点,也需要更多的活力点位。中央位置未来可能是一个公共图书馆或者社区食堂,它是整个社区中的一个聚焦点,就是要它在整个院落空间平铺直叙的状态中跳跃出来。

这个社区里,在底盘之上我们呈现的是一种完全倒置的图底关系。先做空间,再做房子,想要实现的是一种不对称的空间构成关系,多处是半透明的空间属性,在城市混杂状态的里回应一种有机空间的活力感。

图片

图片

图片

通过城市院子的开合布局,激活社区空间的活力

这边是社区在城市界面的主入口,一个架空层的盒子放置在入口处,这个入口有两个标识性的对景关系。架空层的盒子空间在城市与社区之间形成了一种空间上的连续性。

建筑可以是有呼吸的,这里的“墙”变成了一个可呼吸的墙,这样的一个接口也满足了社区中心的一个院落状态。以此为题,内院要实现一个空间完整性的合理尺度表达,鼓励庭院空间中的人性尺度。这样外围的连接与内院的尺度之间也可以达成一种和解。

图片
图片
项目处于施工阶段,预计2022年完工

在整体建筑的布局上,我们的原则是要做到疏密有致。在高密的城市与社区状态之下,要做到建筑之间“疏离”,同时又要实现空间层面的“紧密联系”。

高层住区要面向黄浦江的一线景观,低层住区面向社区院落空间,我们大概做了七个户型的标准版块,运用积木穿插的手法形成整体意义上的生活空间。建筑的原型也是盒子,运用这种高低错落的手法,一面空间给与城市,一面空间还于生活,社区内院和城市外院结合城市地铁的公共交通属性,形成了现在我们看到的,一个可呼吸的城市院落空间。



-


立体多维度开发

开放共融的城市级社区



生长性,首先它是一个极其活跃的状态,另外它是一个复杂混杂的状态,一个比较大家惯用的词叫“有机”,不管是一个人还是100个人,跟空间之间都要构成可以深刻发生关系的一个状态。

TOD社区的存在就是一个大的聚场,我们的社区本身要有一种聚合的能力,或者说呈现一种聚合和疏解的能力。是通过一种聚的方式来引动人流,它很显性能力就是“社区交互”,是一个在城市关系之上的需要具备的活力与联动性,具备一种极强的人与空间的粘性。

图片

TOD社区的垂直多维度空间体系

作为职业建筑师,考虑更多的是我们能够给予城市更多的职业性,要跟真正的生活放在一起进行思考。TOD立体城市社区,就是我们当代城市的理想状态,我们需要在使用者及多方利益体之间寻找一种新的生活平衡感。

在南宁,我们提出了一个有史以来最为复杂的TOD社区方案,在大的规划基础之上进一步加轴线,把整个大的地块给缝合在一起,最终实现步行的空间与每个细部的缝合,构建一个多维交通系统的综合体,实现人行步道和公共景观资源以及两个地铁站的深度融合,从而构成更多良性、积极的公共空间。

图片
图片
项目总体规划策略与鸟瞰效果图

我们最大的关注点在于城市界面,希望它是一个灵动的状态。因为地块比较窄,很容易会形成一个“板”,我们想要把这个板的状态打破掉,所以建筑最终的形态,就是通过这种形态的绵延,最终形成了一种城市及社区空间上的变化。其次就是高差,从城市界面它会是一个向上的状态,立体交通盒子的穿插,盒子里面的立体交通,勾画出整个建筑形成的城市生活场。

图片

图片
方案效果图,展示城市界面的生活场

南宁是山地,场地本身就有高差,空间上的立体变化也回应了山地建筑中的整体环境贴合。但从中央公园对望的建筑界面,我们在设计上有意将这种横竖关系进行强调。从另一个视角看,这里是一个环状的结构,实则利用高差做出一个立体车库,然后通过这个环状形式作为轴线的一个收头,形成场所的连贯性。

这个项目本就是一种对未来生活超现实主义的描绘,也是一种对于在城市高密度生活状态中的进入方式,充满了魔幻、未来以及可生长性。 

在做项目的过程中,通常会面对多种利益体的诸多限制,貌似对设计师存有一种消极因素,一个好的项目的产生则是“天时、地利、人和”兼备,但我们团队做的这几个项目是偶然性极强的,我也相信:设计就是需要不断的观察与学习,不断积累专业与作品,或许就会碰到幸运中的偶然。
Office

上海市长宁区武夷路155号A栋5楼

Contact

商务联系: liyumeng@geedesign.cn  人事联系: hr@geedesign.cn
 

Digital Supported by VTHINK

Copyright 2026 @ ARCHITECTURE & URBAN PLANNING 沪ICP备11018855