您的位置:新闻资讯-致逸有料
2022-08-11
在城市人口不断膨胀,高密度开发愈演愈烈之际,面对紧凑型复合社区的频频出现, 我们需要思考的是,从单一到复合,从毫无章法到有迹可循,空间之于人,之于城市的意义。
项目地处苏州园区金鸡湖核心CBD
位于湖西苏惠路北、星海街东
可谓是苏州的绝版位置
周边地标建筑林立
享有优质的生活配套与景观资源
2018年被万科拿下
在如此稀缺的核心地块上
万科意欲将其打造为湖西新地标
涵盖商业、商务办公、酒店式公寓等多种业态
从而推进传统住宅项目向商业综合体的转型
△基地分析
同年6月,我们参与投标
面对极高的容积率与复杂的业态
设计首先对边界条件进行重新界定
帮助业主明晰设计条件
在前期对公寓、办公、商业三种业态的体量分布
进行了多轮研究
△前期业态体量分布推演分析
在对视线及高度进行分析后
设计通过统一的设计语言和
视线通廊的构建
将空间延伸至金鸡湖畔与东方之门
尽可能放大景观资源的优势
提升了空间的视野与总体价值
△视线分析
在确定业态体量及落位后
我们考虑到
本案东西两侧建筑高度均在300米以上
但由于本案建筑高度
在整个建筑群中并不突出
因此设计想要从
提升塔楼本身建筑空间品质上着手
在垂直方向嵌入多层次共享空间
空中花园、天空会所等空间
强调绿色与生态的空间体验
△功能及流线分析
△致逸设计概念方案
基于前期研究成果与
概念方案的规划推导逻辑
我们联合日建设计
主导总体规划业态的落位
设计以斐波那契螺旋线
重新分配了三栋主体建筑的楼间距
并进一步完善了建筑单体的流线设计
△深化版平面及流线方案©日建+致逸
站在各种城市地标林立聚集的区域
为与周边形成开合有致且统一的城市界面
立面设计以富有韵律感的体块进行分割
在基本几何形体的基础上进行变形
以简单干净的手法展现着空间的都市美学氛围
形成富有冲击感的立面语系

△阶段效果图示意
朝向城市面的入口立面设计元素
为干净利落的几何框形
以金属铝板和石材共同演绎
秩序之下是灵活可变的立面内容
在全新的设计语系下
凸显了裙房独特的功能与昭示性
△阶段效果图示意
槐树路256号所在的三江口土地
有着得天独厚的历史与未来
并享有真正意义上的
一线临江景观资源
适逢万科进入宁波的重要时间点
秉持与城市共同成长的理念
业主希冀以槐树路256号为样本
助力城市更新升级
通过国际招标
我们与多家知名设计企业同台竞技
经过几轮方案优化
最终赢得这一意义深远的项目
△城市肌理分析图
△项目地理区位与周边环境
基于复合功能业态的考量
项目首先需要解决
最优城市界面的分配问题
这也是用地价值与公众利益之间的博弈
在多方利弊权衡之下
最终双方决定置公建区于西侧
将最优城市界面留给非住宅产品
与沿江公共界面相互渗透、相互呼应
形成对外开放的复合街区
消融城市与社区的边界
将更多城市空间还给公众
△项目手绘草图
△前期多种方案推敲过程
△多元复合型社区的营造
项目作为集多种业态于一体的复合型居住形态
设计立足城市本身的维度
对城市界面进行立体考量
形成顺应城市肌理的对称规划布局
充分融于三江口土地
保证了城市规划整体性的同时
又创新丰富了城市天际线
△城市天际线分析对比
△过程方案模型推敲
基于城市界面和视线通廊的推敲考量
建筑沿江形成了横向跌落形态
纵向渗透的景观结构
保证了城市景观视线的通达性
△沿江商业体量分析对比
△视线分析
△跌落建筑形态的多种方式研究
为强化与城市的联系
设计提出多空间、多元素、情景交互的底商概念
并有机重组沿江商业界面
以更为开放的姿态
营造滨水活力社区
△底商概念研究-多空间、多元素、情景交互组合
△沿江商业及公共功能分布
△底商概念应用-整体沿街立面示意
△会所空中泳池与底层商业空间方案示意
同时我们还提出
沿江打造层层退台的建筑空间
竖向创造屋面公共活动空间
丰富住户的生活体验
加强沿江建筑特色及活力营造
呼应壮丽江景的同时
实现地块多功能的复合共生
△沿江商业及公共功能分布剖透视
△商业氛围示意
为辉映港口文明
立面以游艇为概念进行提取
用简洁而流畅的线条
与姚江相呼应,形成具有话题性的城市界面
同时也顺应了城市肌理
打造通透的视线通廊
△立面元素提取
△阶段立面方案示意
不同以往所享的当代大宅
我们还提出
打造顶层Penthouse空中别墅的想法
奢想拥江而居的庭院生活
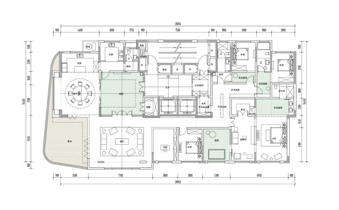
△轴测图
△平面图
历时几载
凝聚着设计心血与大众期待的
这座三江口生活坐标
“点亮”在即,敬请期待
△大区即将建成
*免责: 此文仅作为设计企业宣传推送,设计资料仅作学术交流使用,不涉及商业营销和要约,亦不代表该项目相关企业的任何承诺。
上海市长宁区武夷路155号A栋5楼
商业联系: liyumeng@geedesign.cn
人事联系: hr@geedesign.cn





