您的位置:新闻资讯-致逸头条
2019-08-15
精致的诚实
Delicate Honesty
About Mies van der Rohe
About GEE DESIGN
致逸年中设计交流会
GEEDESIGN Share Night
主讲人:叶笛
Speaker: Ye Di
幸福里E座5楼会议中心
Aug. 2 18:45-20:30
精心筹划
致逸年中设计交流会 GEEDESIGN Share Night
2019年8月2日周五傍晚,致逸设计在幸福里E座G-ART CLUB屋顶会所举行年中设计交流会。

△G-ART CLUB屋顶会所
致逸设计始终“以建成结果为评价标准”衡量设计价值,重视与团队分享设计经验,在建筑设计的工作中孜孜以求尽可能高的设计含金量的作品。此次活动主要由致逸设计副总建筑师叶笛为大家带来干货满满又趣味十足的现场分享,让设计师们能暂时放下繁忙的工作,在轻松自然的环境下,回归自我,聆听精彩,给身心带来一次新呼吸。

晚宴之后,夜色渐暗,大家兴致盎然,设计交流会正式开始。

精筑历程
走近致逸设计 About GEEDESIGN
交流会由致逸运营总经理李郁檬女士开场,她为大家讲述致逸品牌核心视觉体系焕新背后的理念,并介绍了致逸从成立以来的精筑历程。致逸设计凭借“致逸致创,精心精筑”的职业操守,致力于在现实建造体系及经济环境中创造精品。

△致逸设计运营总经理 李郁檬
紧接着,致逸设计总建筑师余总为大家再次回顾了“致逸”的品牌初心——从品牌名称的来源,到致逸多年来的成绩,以及如何利用在品牌更新的视觉系统的契机,让更多客户了解到致逸的品牌价值。

△致逸设计 余泊
精彩演讲
精致的诚实 Delicate Honesty
活动的最精彩的部分便是由此次分享会的主讲人,致逸设计副总建筑师叶笛带来的精彩讲演。叶总的分享从密斯建筑的代表性案例、个人的生活故事和建筑哲学等多个角度,重新解构密斯,从新的视角呈现了一位不一样的建筑大师。

△致逸设计副总建筑师 叶笛
历史的勾联 建筑的状态
以母亲住宅和GLASS HOUSE这两个建筑为引,表达出对密斯产生强烈兴趣的原因。当真正走进一个建筑,住屋里的摆设和建筑的关系会带给我们最直接的影响。房子在过去、当下以及未来的使用状态,会让我们对建筑师的建造设想有更详细的解读。



△ 母亲住宅 现场考察照片



△ GLASS HOUSE 考察照片
分离结构 美化结构 消隐结构
深度解析巴塞罗那国际博览会德国馆,该建筑是密斯最有影响力的代表作品。密斯在这里实现了他的技术与文化融合的理想:建筑最佳的处理方法就是尽量以平淡如水的叙事口吻直接切入到建筑的本质:空间、构造、模数和形态。



△ 德国馆 考察照片

△保罗鲁道夫绘制的视线分析
人在巴塞罗纳德国馆中游走时,总面临选择接下来通向哪里这个问题。空间被人的行走激活,空间的节奏感被人的步伐所赋予。

△ 德国馆中光井作为空间核心,其位置与水平镜像后的赖特罗比住宅中的壁炉一致

△ 密斯为了强调片墙的整体感,在收头位置采取整石作法
结构成就空间 结构成就造型
在克朗楼这个建筑项目,密斯探索钢框架结构和玻璃在建筑中的应用。整洁、骨架露明的外观,灵活多变的流动空间以及简练而制作精致的细部,奠定了密斯作品的风格,是他获得钢铁与玻璃建筑之父称号。



△ 克朗楼 考察照片

△ 克朗楼平面,是Mies对Schenkel的柏林博物馆的致敬

△ 除四榀大梁之外,建筑外立面每隔3m装饰一根工字根
这种采取结构构件作为装饰的手法,在860号湖畔公寓中同样应用
为需求而设计
密斯认为“生活的本质在于地板和屋顶,其他就是比例和自然,房子是否讨人喜欢并不重要。”范斯沃斯住宅在探索人与自然的边界上,做出了大胆而有争议的尝试。


△ 范斯沃思住宅 考察照片

△柱与板采取平焊术(flat welds)
密斯常倾向于对节点的连接进行弱化处理。如柱与板采取平焊术(flat welds)。建筑并没有表现出荷载的传递关系,也没用像康一样将建筑组合的过程的痕迹作为装饰的元素。

△南立面对模数

△ 范斯沃斯住宅与柏林博物馆比例尺度暗合
一生只做一个建筑
柏林国家博物馆是密斯人生最后一个项目,实现了他全面空间的构想。1967年4月5日上午9点,密斯乘坐一辆优雅的白色梅塞德斯轿车来到了工地,此时密斯的身体状况已经很糟糕了,几乎不能行走。但他在那里停留了9个小时之久,参观整个屋顶框架的吊装仪式。可见他对自己作品的执着追求。


△ 柏林博物馆

△建筑一共使用8根柱子撑起64*64m的屋顶

△柱子的尺度,Mies进行仔细的推敲选定了最右侧的形式

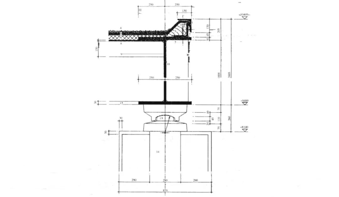
△十字钢柱与1.8m厚钢梁的交接节点

△ 1250吨屋顶,使用16组千斤顶,9小时安装完成
密斯坐在白色奔驰里视察了整个过程。

△密斯手绘草图
何为精致的诚实?
研读大师,并非对大师作品的简单模仿。密斯给予我们的启发是,他总在追寻建筑被生成的本质过程。他希望最忠实的表现建筑应有的状态。而我们能从中学习的,是在繁复的现代商业规则下,如何保持建筑师的独立判断。在真与美之间,以真为美。通过精致的手段,实现诚实的底色。


此次交流会持续两个多小时,活动结束时已是夏日良夜。此次交流让大家意犹未尽,作为建筑行业从业者,不仅获得了更多的工作上的灵感,也重新体会了建筑之于生活的意义。

上海市长宁区武夷路155号A栋5楼
商业联系: liyumeng@geedesign.cn
人事联系: hr@geedesign.cn