您的位置:新闻资讯-致逸聊宅

综合社区底盘是一种「关系联结」的新方式 | 槐望观邸

2023-03-23

图片


从古至今,伴随人类居住环境的演变,人们对于居所的空间需求也不断变化:从原始时代的部落文明,人们从适应自然到搭建庇护处所,对于自然和土地的关系由此构建;到农耕社会的房屋里弄,人们掌握工具与材料的能力增强的同时,对于私密空间的需求也在扩张;再到近代社会,生产力的提高刺激了人居环境的提升,拔地而起的高楼意味着城市空间的内容、生活方式的多维度转变。


图片
图片
图片
图片
图片
图片

△古往今来,居住环境的演变历程



综合社区的本质是什么?

如何营造多维度的场景?


当代城市中居住的人们对于生活方式的转变与意识觉醒,为“社区”这一城市空间载体的多样性提供了可行性:大多数人们更有意愿从城市生活的喧嚣中脱离出来,亲近自然的方式变得多样;人们在日常生活中倾向于归属感的建立,邻里社交与社群的行为更具包容性;从社会身份转换到家庭身份,人们更希望从与家相关联的场景中体验多层维度的生活方式。


△现代城市空间多样性的体现与人们对生活方式的追求






致逸认为,综合社区底盘是一种“关系联结”的新方式,可以从以下所述的几种维度引导综合社区的设计实践:


1>


视野升维:

Hub-space耦合城市界面与社区空间的联结

2>


底盘拓延:

X-space激活多种社群式场景的联结

3>


体系构建:

N-Link提供多样化需求与行为路径的联结








Part 1

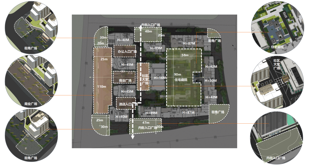
耦合城市的公共空间

Hub space:多种功能区连接空间—办公+酒店+服务+居住

图片


《美国大城市的死与生》中提及这样的一种观念,即建立社区对于健康的街道和城市空间而言至关重要,具有较强身份认同感的人们相互了解的社区将趋向于更加有序和安全。社区作为城市空间的单元,其与城市空间的关系一直成为城市规划和建筑设计领域的主要课题,这也为研究如何有效联结开放的公共空间与内向的居住空间提供了可持续的思路


图片
图片
图片

△城市单元的公共化联结,耦合城市环境与社区日常空间


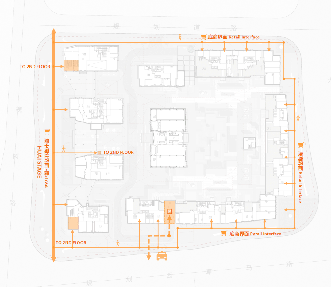
在宁波万科槐树路256号的整体规划中,这种城市公共性与人群的多样性正是解题的核心,Hub-Space的概念介入也解决了复合功能带来的多重流线困境。基于具有相同兴趣爱好的社群需求,从共享的城市服务空间(槐stage、雅诗阁酒店及公寓)过渡到社交型社区邻里空间,设计策略在于整合不同人群的行为路径,区分使用者与后勤服务者的具体需求,聚焦于多样化的场景体验与节点空间优化。所谓社区底盘的研究更是一种统筹空间、场景、人群关系的思维工具,建立社区归属感的价值体系。


图片

△Hub Space整合效益:从公共到私享空间的行动路径


图片
图片
图片

△社区底盘的梳理与统筹,Hub space以空间场景为联结





Part 2

场景互联的社区底盘

多样化使用及服务人群的的专属X-space与场景动线

图片


社区底盘中最有趣的是关于社群与空间的关系,这其中最重要的便是人与人之间的关系经历社交需求的转型,城市空间和社区更加重视“第三空间”的营造,人们更愿意趋同“兴趣”,而不仅是地域、职业等因素。槐stage的社区商业形态从某种程度上打破了传统定位与格局,独立又联合的空间格局匹配宁波临江的独特稀缺性,恰好为本地新生的创业先锋品牌群体试图做出新尝试提供土壤,也为这类兴趣趋同的消费者创造个性的场景与体验。


图片

△以非建筑空间触发居住生活场景的融入


图片
图片
图片
图片
图片
图片

△从城市环境进入到社区公共空间:融入市民日常行为与公共活动的场景空间


公共空间的服务对象既是趣缘社群,也是社区居住者,这也形成了商业、酒店、公寓、办公的多重流线与居住动线的叠合:开放的临江界面与城市干道吸纳人群流量,公寓、酒店大堂的落客区作为X-space衍生出多种使用场景;住宅落客区的界面与Hub-space串联消解之后,社区大堂犹如一种多端口的接线板,引导使用者与物业的人车动向,由内向外有序的组织行为路径与人性化的生活场景。


图片

△Hub space功能流线示意图,涵盖多样化的社区服务单元


图片
图片
图片
图片

△过渡空间穿越Hub space之后,延展出归家体验场


图片
图片
图片

△进入居住社区的X-space,提供驻足休憩的公共环境





Part 3

流线系统及精细设计

针对性的梳理功能流线,将酒店化的精致细节落到实处

图片


随着互联网平台时代的不断进化,社群关系也会愈发变得多重,使用者的需求与权益更因此主导新型的人际网络形态。也许人们在未来生活的用户概念会被重塑并拓展到场景体验中,最重要的环节仍然是社区的日常体验是否舒适与自如。那么设计更需要深入场景体验与人群行为模式,精细化考量空间的尺度、近人视线的细节表达。为此我们针对性的梳理功能流线,将酒店化的精致细节落到实处。


图片

△厘清商业、办公、酒店、居住服务等空间动线,精致化营造综合社区,赋能多元化的城市单元


①酒店入口设计:突破酒店的正面形象,为酒店入口增加静谧空间。通过玻璃幕墙提升正面形象,侧立面使用铝板,使得立面更精致。结合景观。


图片
图片
图片


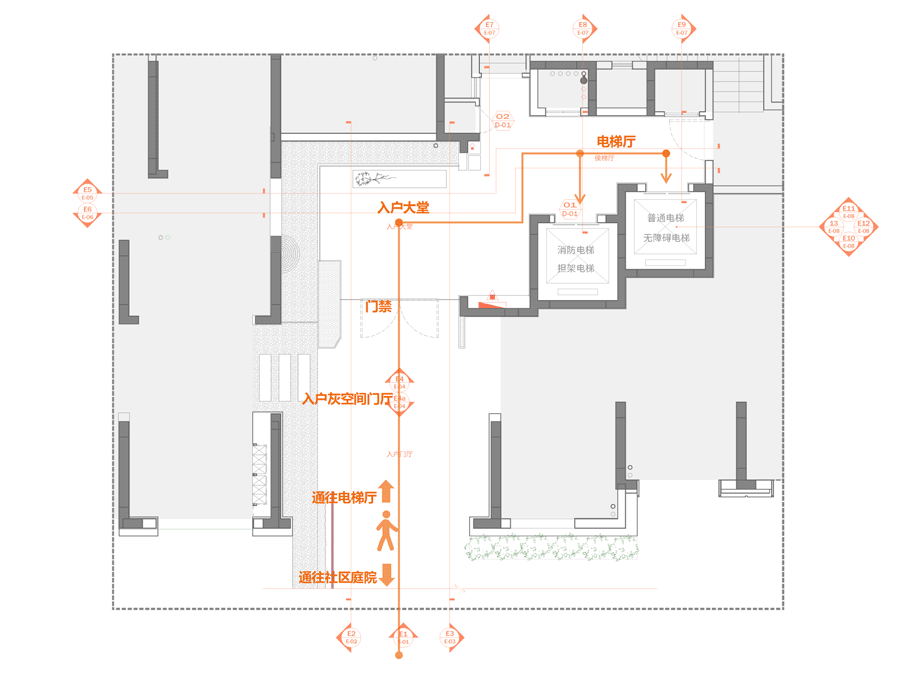
②单元入口的空间设计与景观紧密结合,打造具有私密性的角落;架空层的处理与室内无缝衔接,促使居者进出之时彷佛穿过属于自己的小庭院。


图片
图片

△社区单元立体流线示意图,半私密场景消解边界并融入景观


图片
图片


图片

△归家动线示意图,从景观场域到入口灰空间再到大堂


图片
图片
图片
图片


③车库坡道设计:通往归家电梯的入户大门与地上保持一致性,与室内顶部无缝衔接,优化照明、标识的氛围感营造,将精致化的场景体验落实到具体而微的细节中。


图片

△住区单元楼一层到地下室的流线布置


图片
图片
图片
图片
图片


④生活配套设施的细节设计:关照人们的日常使用,在一些与配套有关联的构件也融入设计元素,反复推敲过程方案,最终希望促进在地化的认同感,同时也加深品牌的价值内核。


图片
图片

△入户体验细节把控,小到门把手、景观花钵的形态设计


图片
图片
图片
图片

△关照采光井、垃圾分类管理以及消防通道的获



未来趋势展望:当今社会在高度流动性的推演下,人们对于边界感的稳定性有着明确的需求,但同时也需要人际关系的包容共生的属性。在未来城市里,新技术会带来更多的新体验与生活方式,功能融合、场景互联、社交共享、本地认同、品质价值都将成为规划与设计中的可持续因子,也离不开社区服务系统的智慧化、运营管理的体系创新。城市的升级本质在于群体社会关系的转变,也许在未来,社区的平台主导权在于使用者自发生长与机制更新。


图片
图片
图片
图片




主创设计师


图片

叶笛

图片

潘翼



宁波万科槐树路256号


项目业主:宁波万科

项目地点:宁波市江北区

用地面积:29,516㎡

建筑面积:82,600㎡

建筑规划设计:致逸设计

设计团队:潘翼、樊松峰、李少洪、陈晨阳、徐若晗、解虎、邓辉、张海峰、陈起、叶海挺、吕慧芳、罗静雯、缪庚雄、吴波、刘豫、陈明慎、刘聪、程磊、杨健、操琰、米奇、闫万荣 

商业顾问:JHD建筑

景观设计:北京创翌善策景观设计有限公司

室内设计:牧笛设计(住宅)、香港郑中设计事务所(酒店)

施工图设计:宁波市民用建筑设计研究院有限公司

幕墙设计:弗思特建筑科技有限公司

建筑摄影:筑相制片、须然建筑摄影 邬涛



*免责: 此文仅作为设计企业宣传推送,设计资料仅作学术交流使用,不涉及商业营销和要约,亦不代表该项目相关企业的任何承诺。

Office

上海市长宁区武夷路155号A栋5楼

Contact

商务联系: liyumeng@geedesign.cn  人事联系: hr@geedesign.cn
 

Digital Supported by VTHINK

Copyright 2026 @ ARCHITECTURE & URBAN PLANNING 沪ICP备11018855