宋韵清逸,风雅行舟
“
秦汉古朴、盛唐华贵、两宋风雅、明清繁复。
引领1000年的宋朝美学,如今回望依然清雅脱俗、美轮美奂。
不爱繁复,独爱简约;痴迷玉的温润,也深爱瓷器的清透;对每一事每一物的审美追求,都出于一个"简单纯粹";
这亦是我们携手建发房产打造的风雅宋韵新品 [印象青城]的文化溯源。
”
如今“宋韵”已不再只是朝代的名称,而演变成了艺术史中一个独特的美学符号。[风雅宋韵]产品,是在精研宋代文化和建筑特征的基础上,以 [ 轻、闲、霁、金 ]的匠造手法,对产品进行文化溯源与转译,真实复刻宋代风雅市集,抽象凝练宋韵印象,呈现千里江山的壮观场景。
清新儒雅 精致飘逸:
宋代美学强烈的人文精神,以及至纯至雅的独特风貌,成就了中国审美之源。设计团队从2023开年伊始,从浩如烟海的史料及宋画中提炼出代表性的宋韵建筑符号;又经过数十稿方案的推敲,初步确定下[风雅宋韵]产品的风格雏形,最终落子上海青浦新城。
∆ 研发阶段 效果图
∆ 项目落地 实景图
∆ 设计构思过程手稿
印象青城是对宋式美学体验一次充满浪漫的再现。宋朝在瓷器、绘画、书法等上的美学成就,对后世影响深远,是后代师法范本。这一次,[风雅宋韵]产品在经典之上再做革新,以“清新儒雅 精致飘逸“的美学内核,打造出了“风雅三进,行舟六幕”的雅居情境。
一进 青承门:
青承门采用中轴对称的格局,恢弘大气。我们复刻了传统的建筑形制,但在古典的基础上我们结合了现代的审美需求,在大门两侧,我们设计了不对称的景墙以此打破传统的平衡感。
“轻盈飘逸”—— 大门屋顶用宋韵写意的手法勾勒出屋顶富有标志性的轮廓,檐口被精炼成一道镂空向上弯曲的金色线条,既表现宋式建筑舒展平远的姿态,又有超凡脱俗的美好寓意。
二进 青雅叙:
是展示阶段的宋式生活体验馆,也是小区未来的会所。整栋建筑屋身层层飞檐、基座漂浮架空、巨幕玻璃立面,非常飘逸灵动,以其清秀之气,含蓄之美、朦胧之境,体现了宋人的精致审美。
“细致精美” —— 以细微之处致敬经典,在借鉴宋代建筑风格的同时,汲取宋画里的精髓,使用现代铝合金等代替传统材料,通过美人靠、方格挂䈋、避风䈋、擗帘杆、版引檐、钩窗阑槛等传统中式建筑元素的方式演绎,将宋画宋词中诗意的栖居环境展现出来,重演人间的极致风雅。
三进 青漪园:
青漪园是印象青城的核心庭院,整个空间以水为中心,这与青浦的水文化一脉相承。一座隐桥悬于水面,将人们的生活串联起来,树影青葱,清风摇曳,为栖居增添一份趣味与诗意的体验。
∆ 会所与下沉庭院 剖面关系图
印象青城坐落于青浦新城的中央商务区内,在宋代青浦区曾用名“青龙镇”,依其发达的水上交通和贸易,迅速崛起成为名望江南的巨镇,青浦作为江南文化的码头,也是上海的文明之光。
∆ 示范区六大情境(@GVL怡境)
《仿杨大章画<宋院本金陵图〉》中生动描绘了宋代金陵城的人文生活场景,我们的院落构思也源由于此,将空间划分为"行舟踏浪"、“风幕翠幕”、"码头茶歇"、”烟柳画桥”、“曲水引舫”“扁舟唱晚”六大情境,以宁静文雅的诗意空间传递东方美学深意。
如果要给宋朝贴个标签,“懂生活”当为其一 。抚琴、调香、赏花、观画、弈棋、烹茶、听风、饮酒、观瀑、采菊、诗歌、绘画......“美”是宋代文人生中比不可少的平常事。
∆宋式生活 "四般闲事" (@MANS漫思设计)
宋人吴自牧在其笔记《梦梁录》记载:“烧香点茶,挂画插花,四般闲事,不许戾家。”点出了此“四事”,风雅的宋人便有了平日里"焚香、点茶、挂画和插花"这四种雅事,我们的室内外空间的构思巧意也将此感官艺术与空间布局相融合,从而表达出自己的内涵修养与精神境界。
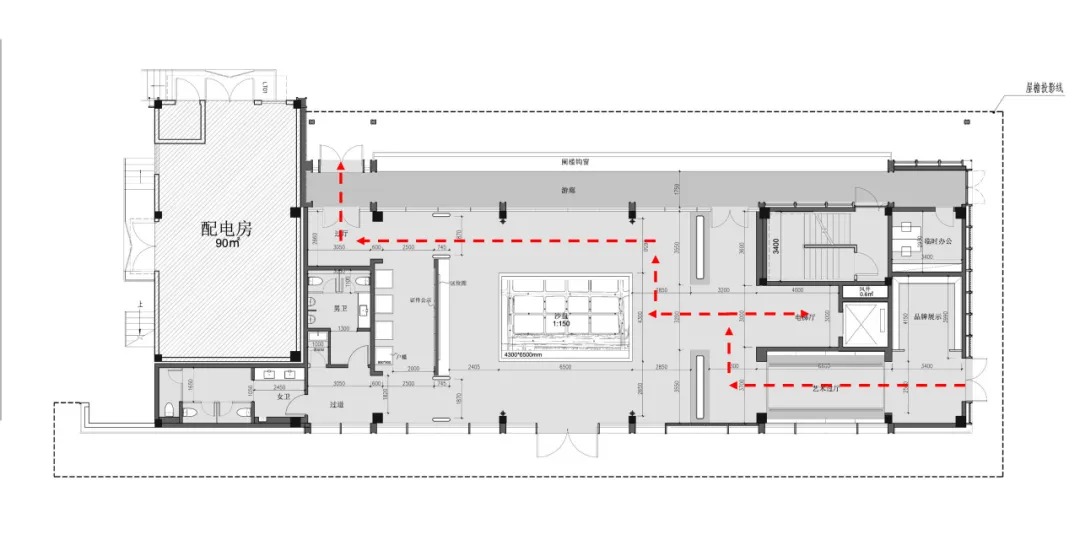
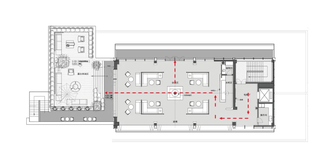
在宋式生活体验馆内,整体空间亦取意“轻盈飘逸,细致精美”,一层洽谈区汲取宋画中的“通长寻仗”、“钩窗阑槛”等建筑符号于空间之中,构建成洽谈区的造型框架与细部特点;地下一层会所则运用了宋代建筑典型的屋檐轮廓作为天花板的设计语言,减量化的尺度设定让造型保持轻盈感,同时其序列感也与墙面屏风相互呼应。
空间布陈的考量,更是将宋人的文雅之事融入空间之中,“装饰挂画”、“熏香陈设“、“禅境点茶”、“风雅植物”等,于细微之处致敬古韵美学。
∆ 宋式生活体验馆 (@MANS漫思设计)
∆ 示范区整体平面图
∆ 体验馆 一层平面图
∆ 体验馆 二层平面图
∆ 地下会所 平面图
一字一句落笔成诗,
一勾一皴吹墨为画,
一梁一柱纵横为境。
"美人靠、方格挂䈋、避风䈋、擗帘杆、版引檐、钩窗阑槛..." 不仅是整体布局的构思描绘出这强烈而隽永的宋代美学,[印象青城]的细节之处也皆有考究;我们的[风雅宋韵]故事未完待续,[下篇] 将展示更多的匠心设计精彩。
← 向左滑动 提前欣赏【下篇】细节设计精彩
主创设计师
叶笛
张瑞雪
汪蔚杰
上海保利&建发·印象青城
项目业主: 保利置业、建发房产
项目地点: 上海市青浦区
总建筑面积:491999.72㎡
容积率:2.39
示范区面积:900㎡(地上建筑面积)
建筑设计: 致逸设计
住宅合作设计:DC国际建筑设计事务所
示范区团队: 张瑞雪、陈晨阳、陈加欣、陈阳杰、陈明慎、张亚举
住宅团队:汪蔚杰、洪威、朱乾、方思计、冯雪松、隋铭玉、姚渊亭、周燕、克然·布拉提哈力、吴波、唐加拉克·努尔霍加、王禧钰、王正慧、侯英浩、李荣荣
景观设计: GVL国际怡境景观设计公司
室内设计: MANS漫思设计
施工图设计: 中建上海院、上海对外建设建筑设计有限公司
照明设计: 儒视照明设计(上海)有限公司
幕墙设计: 中哲创建科技股份有限公司
建筑摄影:空间解映、真理
*免责: 此文仅作为设计企业宣传推送,设计资料仅作学术交流使用,不涉及商业营销和要约,亦不代表该项目相关企业的任何承诺。
上海市长宁区新华路668号
商业联系: liyumeng@geedesign.cn
人事联系: hr@geedesign.cn












































