进阶的方圆之美
都会之光社区中心
江西.南昌/ 2020.07
随着城市化进程的步步推进,日趋完善的新区规划意图为人们构建更加舒适的生活场。而零星点缀在街道中的公共空间,不仅被赋予了复合多样的空间属性,更成为打破居者归家节奏的城市隙间。
多元与纯粹并不冲突
空间体验与格局形态
作为南昌市“赣江之北的红谷滩新区”的文化社区中心,我们将设计重点归纳于对空间感官的探索。建筑设计以亲切柔软的方式连接景观与室内空间,突破社区中心与公共空间的固有定义,碰撞出城市艺术与休闲生活的火花,是此次设计的初心。
△方案草图

△实景照片
△生成过程分析图
社区中心不再是单纯满足生活需求的空间,更是都市中人情味的营造场。从城市道路而来,景观前广场的过渡缓解了忙碌的生活节奏。建筑形态与尺度的平衡变得尤为重要,开放、亲和、包容是建筑所呈现的直观感知。
建筑设计不再拘泥于约定俗成的传统风格与套路,更多呈现出多元化的可能性。因此,设计在规整方正的建筑体块中,赋予圆形要素以合理化的存在形态,恰如其分的运用方圆之间的组织关系,呼应人与城市界面的自然耦合。

空间的功能属性则被合理的内置于方正的结构形体之中。体块之间的错动与叠加形成趣味性的建筑空间。
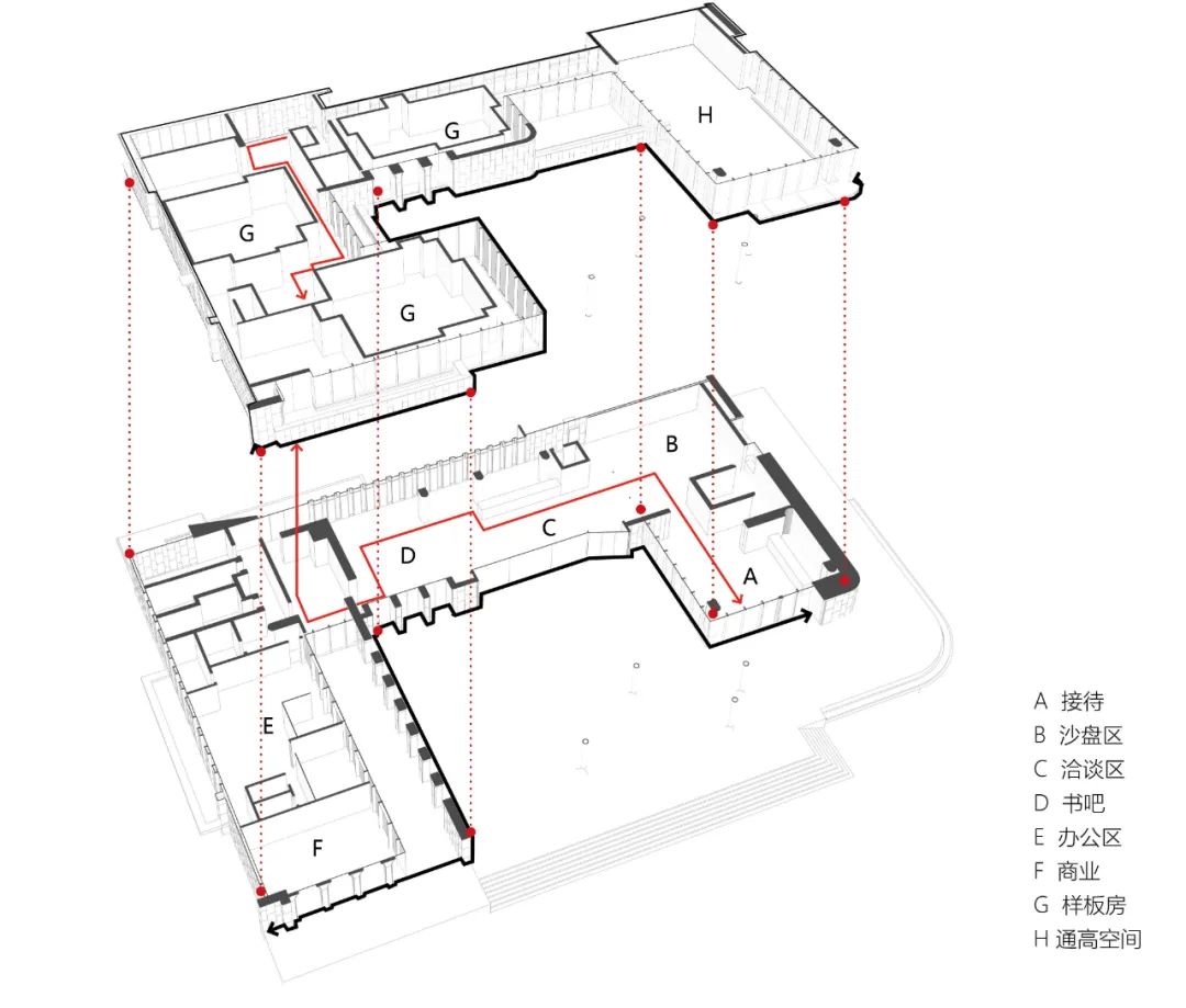
△功能分区与流线组织

观者的流线呈现出动态自由的特质:视线上受到超常规尺度的圆伞状柱子以及弧形挑檐的吸引,人们开始对这片空间充满着好奇心;近人尺度空间下圆弧形门洞的节奏序列感,更加强了中庭空间的生机感。
直线与曲线在这里交织,呈现出柔性的视觉美感。风、雨、光也糅合进来,为体验者带来自然空间的律动与呼吸之感。

我们希望在这样充满着矛盾之美的空间之下,通过规整的方形体量与圆形要素的碰撞,将外在的骨骼与内在的灵魂合为一体。
由此,设计从整体表现切入,推敲平面与立面的整合关联、不同尺度圆弧、圆拱、圆角之间的关系。我们经过对线与面、方与圆的有机规划,造就动态的层次感与视觉张力。
△圆元素的节点构建
同样的元素运用,通过不同的工艺细节,表达整体又统一的立面关系。
△开模型材收边,保证圆拱造型的精致平整
丰富的建筑形态不需要复杂的呈现方式,选择用最简单的材料表达其最纯粹的意义,石材、铝材、玻璃的虚实相生,简练之中更显精致。

与伙伴共建造
建筑、室内、景观的一体化
△我们一起在现场
△室内、景观实景照片
△建造现场实景
△现场比对挑选材料
△施工现场花絮


南昌金地中奥九颂·都会之光
项目业主:金地集团&中奥地产&九颂山河置业
项目地点:南昌市新建区
用地面积:70,869㎡
建筑面积:271,134㎡
建筑设计:致逸设计
设计团队:郁俞、邹钱、吴仲琪、徐美娟、姜保君、黄纬、张腾、刘倩倩、李慧洲、杨路遥、范奎
甲方团队:杜伟、陈刚、刘伟军、丁霞、刘元隆、罗成(金地南昌公司)
施工图设计:基准方中
景观设计:伍道国际
室内设计:DOME&ASSOCIATES董世建筑
幕墙设计:万石建筑装饰有限公司
建筑摄影:纯点建筑摄影、存在建筑/何震环、华睿摄影/张华宏
上海市长宁区武夷路155号A栋5楼
商业联系: liyumeng@geedesign.cn
人事联系: hr@geedesign.cn

























