林深闻鹿鸣 月隐觅繁星
灯火暖旷野 绵松映山青
……
献给浪漫之都 穿越山海之旅
迭新褐石,于经典中构建海湾城市蓝图
场地&策略
如果说粉墙黛瓦是苏州的城市个性、胡同合院是北京的城市个性,那么雕花褐石则是因海而生的大连特质,浪漫古典令人心向往之。作为城市筑造者,金地在这片土地上于经典中构建城市未来,启幕城市的下一个黄金时代。
△地理区位与环境氛围实景
项目坐落在大连甘西生态科技创新城城芯,带着对大连典型建筑风格的理解,和对山海之城的自然想象,设计完成了看似穿越的空间设计。传统与新生,冲撞与融合,演绎从古至今的瞬时永恒,带给来访者一段穿越的时空体验。
△项目鸟瞰实景
在新奇中开启山丘城堡的漫游之路
设计故事解读
△主入口实景
沿城市主要人流方向旅顺北路,由东向西而行,远处是褐石与玻璃共同构建的塔身、屹立在清澈的天空之下,看似孤立、破损的褐石结构尽享原始地貌,定格别样的山丘古堡,这是一场与超时空的现实邂逅,也是我们对每一位来访者的启示,让人不禁疑问,前方究竟是一个怎样的空间?
△远处眺望褐石城堡
坡道的引入,为进入建筑的动作增加时间性的同时,也为来访者创造了更多思考时间。从初见项目那一刻起,人就真正的参与到空间内。
△人行坡道入口实景
古典与现代冲撞融合的建筑形态
抵达入口,超尺度悬挑的菱形建筑体块映入眼帘,让视野从横向突然转为纵向,悬于主体之上的异形玻璃扩展极具现代风格,与看似原生的红房子形成强烈的视觉对比,现代与古典在此冲撞,两个相交互的体量又共同创造出一个熟悉的全新体量,两种风格的碰撞让那些习以为常变得别出心裁。
△爆炸图
层层穿越的多元空间体验
经过反复的推敲,我们最终形成了兼顾形式美感与视线价值的入口设计方案,为来访者创造出两条截然不同的入户路径体验。回应场地高差并减少建筑体量对沿街带来的压抑感,沿项目主体地势跌落,形成台阶状的屋顶花园平台,拾阶而上享受自然野趣之余,可直达二层展示空间;
△剖面图
除了曲径通幽的自然之路还有另外一条路径,以更为简洁直观的现代设计手法实现极富流畅效率的动线。经由一层的规划展馆,高透的玻璃渗透室内场景,可搭载直梯进入二层展馆空间和三层品牌生活体验区,更多强调空间的功能性。
室内设计是要有效的修缮、维系和建筑之间的关系:古典与现代看似“对立”的空间体验,泾渭分明间又产生融合与互动,身临其境可体验空间一步之遥的穿越感。
△室内空间实景图
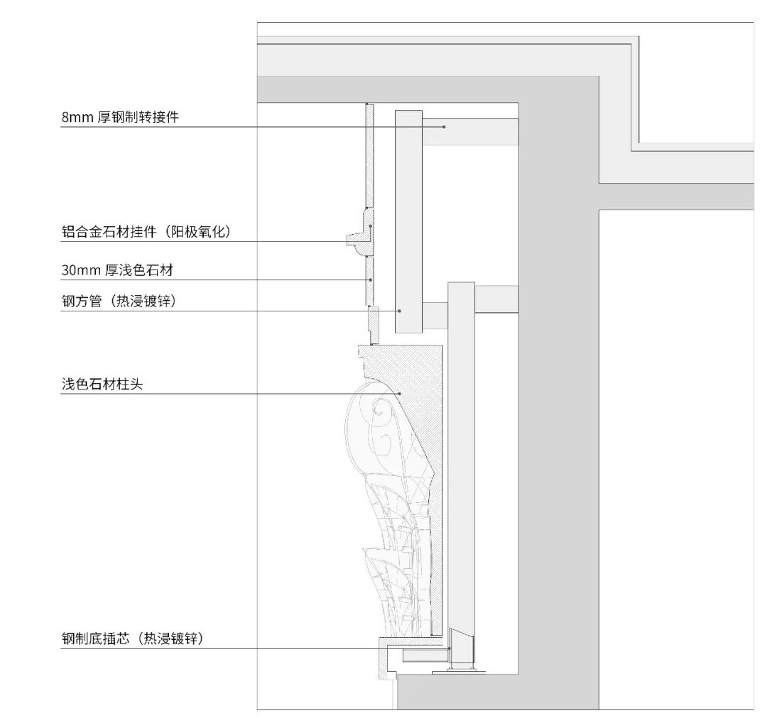
建筑细部的复刻与修缮
材质细节诠释
△光影演变下的空间场景
为了表达古典到现代的演变,在兼顾装饰性与功能性的框架下,温润谦逊的褐石肌理与个性简约的玻璃材质,赋予了建筑主体两种截然不同的底色,所以要想营造穿越但不分裂的空间感受,这就要求我们必须把握更多细节。
△不规则体块外立面玻璃幕墙的节点
△材质细节实景
△古典与现代材质的对比反差
不同于传统褐石建筑,项目以玻璃幕墙和金属线边代替了石材线脚和铁艺栏杆,两个主体在互保个性的同时又自然相融,意为复刻致敬,却未止步于此。
△装饰细部构造节点
考虑到日景的朦胧感以及夜景配合灯光的闪耀感,我们在玻璃材质的透明度选择上颇费心力,反复比对不同反射率的镜面玻璃,选择效果最为适宜的材质实现这种特殊的质感。
△朦胧质感的塔楼日景

伴随新一代的居住、商业及文化空间的兴起,大连金地城·褐石城堡所在的甘西片区的未来无疑是值得期许的。地标建筑不断重构着城市天际线,直至新的空间秩序代替旧的城市文脉,但珍贵的是我们从未丢失独属大连的都市浪漫,城市记忆都被小心翼翼地存储、转译与延续,让城市不断展示着最为活力的一面。
主创设计师
叶笛
邹钱
侯英浩
大连金地城·褐石城堡
项目业主:金地
项目地点:大连市甘西·生态科技创新城
用地面积:10,200㎡
建筑面积:3,300㎡
建筑设计:致逸设计
甲方设计团队:索麟、于雅娜、于刚、朱晓霞、高韦、赵巍、乔可义
建筑设计团队:叶笛、邹钱、侯英浩、马剑、徐若晗、吕佳欣、董玮
景观设计:浙江安道设计股份有限公司
室内设计:DOME&ASSOCIATES董世建筑
照明设计:碧昂照明设计咨询(上海)有限公司
幕墙设计:沈阳正祥装饰设计有限公司
建筑摄影:纯点建筑摄影、空间解映
室内摄影:啊光
视频影像:空间解映
上海市长宁区武夷路155号A栋5楼
商业联系: liyumeng@geedesign.cn
人事联系: hr@geedesign.cn



































