还原返本,精致再造
	
嘉兴金地风华四海社区馆
嘉兴.海盐/ 2020.04
放眼世界,湾区这一具有开放经济结构与高效资源协同能力的城市形态,俨然成为城市发展的催化剂;而在中国,伴随杭州湾大湾区人口与经济密度的再提升,如何将城市空间结构与自然生态环境有机融合,无疑成为备受瞩目的课题。
设计之意:湾区卓越生活新体验
	
△杭州湾大湾区版图
嘉兴金地风华四海落址于沪杭甬几何中心的海盐湾区,这里链接上海与杭州的核心滨海地段,享有得天独厚的自然环境、一应俱全的周边商业与生活配套。该项目在设计之初便承载着集卓越品质与活力氛围于一体的营造目标。
	

△项目地理区位分析
面对基地现状要素与土地价值分析,我们以滨河绿廊为依托,融汇江南鱼米之乡的文化底蕴,整合周边交通、商业配套、自然景观等资源,旨在构建出现代都市中绿意盎然的社区,为湾区精英阶层创造卓越的生活体验。
	

△项目完整方案效果图
设计之始:局限场地与多样诉求
在设计之初,由于基地输入条件的不确定因素,我们从用地现状条件着手,将多样化功能诉求在不同维度上展开探索性尝试,体量关系与空间格局也随之不断变化。
	
△前期多种方案的研究过程
但由于周期的有限性,设计面临分阶段建造过程,我们在初期完整方案基础上及时进行设计调整,以求建造过程的较高还原度。
	

△原方案基础上的优化过程
对比最终实景具有较高的还原度
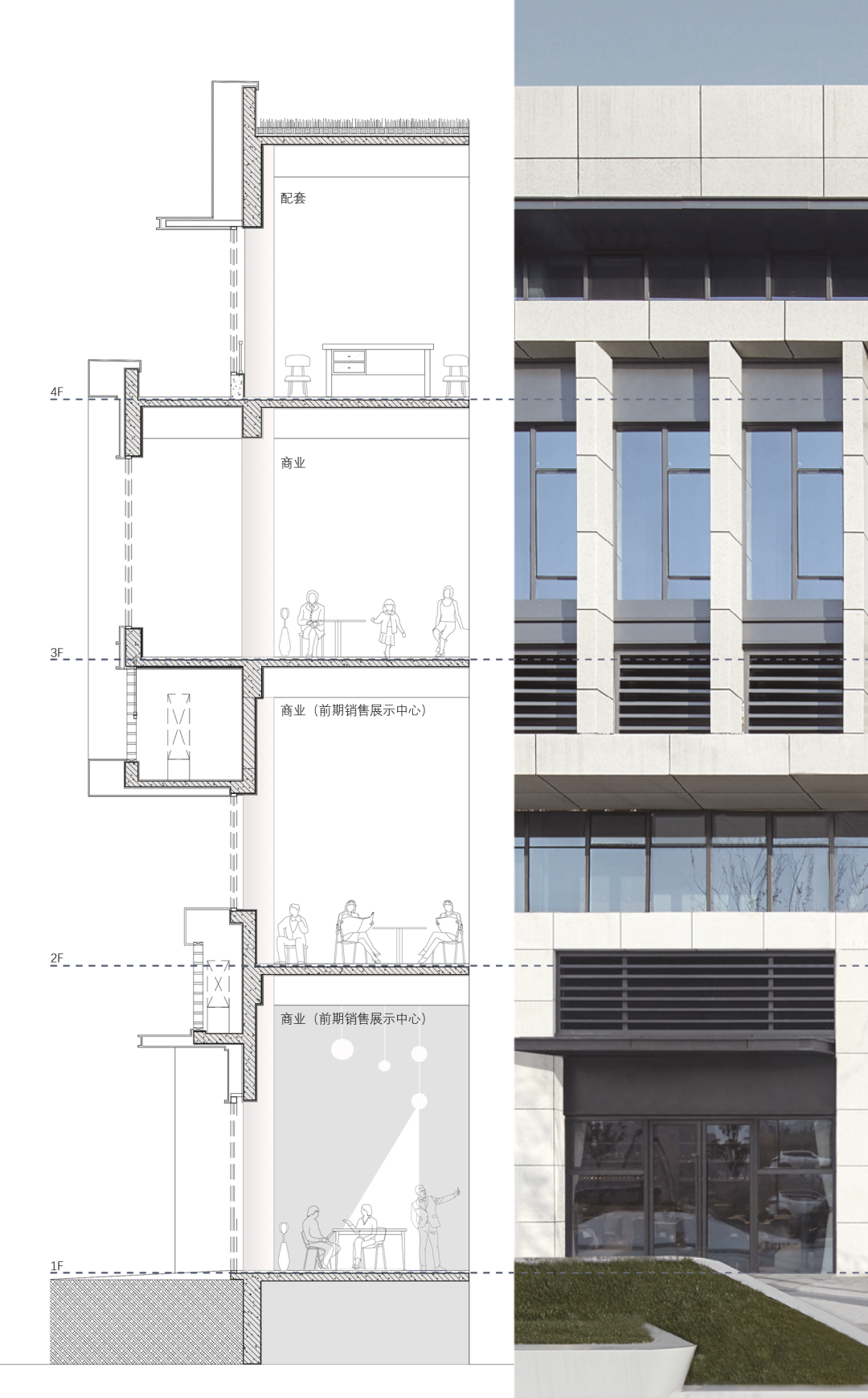
由此,我们聚焦于协调用地紧凑与功能多样化的关系:在小于2,000平方米的局促用地范围内,该建筑需要容纳超过5,000平方米的展示体验、社区物业、商业配套的业态功能;同时结合选址的优势,建成后的社区馆将成为社区人行主入口,并将地面停车问题综合考量。
	
△场地交通流线分析
最终,我们重新规整场地布局,将建筑设置在基地东北角,使其临于城市界面,突出昭示感的同时以开放性紧密连接街角广场,最大限度将资源集聚与激活。
	
△项目鸟瞰实景
建筑临于城市界面,最大化激活场地
	

△沿街透视实景
建筑造型增强城市界面的标识感
设计之内:场所性格与建筑表情
	
△设计方案草图
随着项目周期的灵活机动性增强,业态功能与空间布局逐渐混合,我们综合考量生活馆基于城市界面的形态,营造五层商业+三层展示格局的一体化社区馆,以纯粹、素雅的姿态格调,与周边环境的氛围形成强烈反差。
	
△最终方案生成过程
	
△最终方案模型
与街区对角线待建商业中心营造的氛围不同,社区馆的造型与立面设计摒弃了传统单一业态的建筑语言,运用理性克制的设计策略还原返本。在体量与造型的设计方面,我们通过横向序列的雕塑手法、主次分明的体块关系,强化建筑空间的虚实关系。
	

△沿街各角度透视的实景
建筑外立面主要采用白麻荔枝面石材及仿石铝板,附加灰色系的金属铝板及古铜色铝不锈钢沟边和点缀。主入口幕墙采用超白高透的超高尺度玻璃,体现简约挺拔的精致感,在喧闹的城市中呈现遗世独立的气质。
	

△简洁纯粹的材质细部实景
设计之外:材料语言与建造故事
	
△竖向空间关系的详图解析
在经历多次与材料商的沟通选样后,我们实地现场反复比对,最终选定与白麻花岗岩吻合度较高的仿白麻花岗岩铝板搭配,有效把控建筑各层立面协调统一的效果。
	
 
	 
 
	 
△现场比对材料并反复进行选样
我们通过跨学科之间的磨合与现场配合,实现还原度极高的落地实践。在精细化设计方面,石材转角采用海棠角拼接方式,最大化降低胶缝尺度。
	

△仿石铝板的立面分缝细节
	
△石材转角拼接方式为海棠角,尺度为3mm
我们通过折板以及密拼等方式处理铝板转角三面交接问题,使得材质细节过渡简洁有力。
	
△仿石铝板拼接细部实景
	
△仿石铝板立面拼接节点详图
在玻璃幕墙明框细节之处,我们充分利用内嵌不锈钢金属条结构,弱化明框尺度的同时增加细角层次。
	
△玻璃幕墙节点实景
弱化明框尺度、增加细角层次
	
△玻璃幕墙节点详图
为了将建筑的场所氛围最大化呈现在大众面前,我们积极克服了选材与建造现场方面的种种困境,于细微处见真章。
	
△业主、建筑方、等齐聚施工现场
	
△建造现场过程记录
“人”是生活空间的关键因子,该项目品质所展现的脱俗气韵,因人而设、以人为根基。我们希望将该建筑营造出具有艺术性与新鲜感的容器,打破传统社区中心繁重的商业氛围,探寻交织地域风骨与时代精神的生活高地。
	
△北立面图
	
△东立面图
	

嘉兴金地风华四海社区馆
项目业主:金地
项目地点:嘉兴市海盐创业路南侧
用地面积:71,984㎡
建筑面积:215,161㎡
建筑设计:致逸设计
设计团队:郁俞、吴仲琪、姜保君、徐美娟
张腾、刘倩倩、李慧洲
甲方团队:潘慧、储顺平、胡鹭鹭
任翠、安梦梦、曾吉丽
施工图设计:浙江利恩工程咨询公司
景观设计:安道景观
室内设计:曜年设计
幕墙设计:弗斯特幕墙
建筑摄影:曾江河
上海市长宁区新华路668号
商业联系: liyumeng@geedesign.cn
人事联系: hr@geedesign.cn